Linkedin
17 April 2026 | EXCHANGE RATE EUR 4.2661 PLN
pl | en

+48 22 11 200 11

Biuro do wynajęcia Kraków Kraków-Śródmieście

Number: 139804/3105/OLW
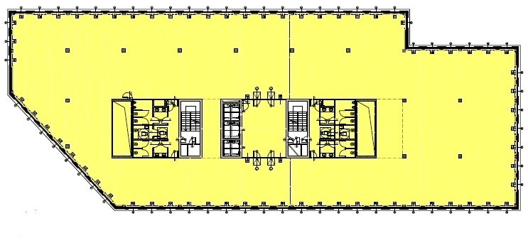
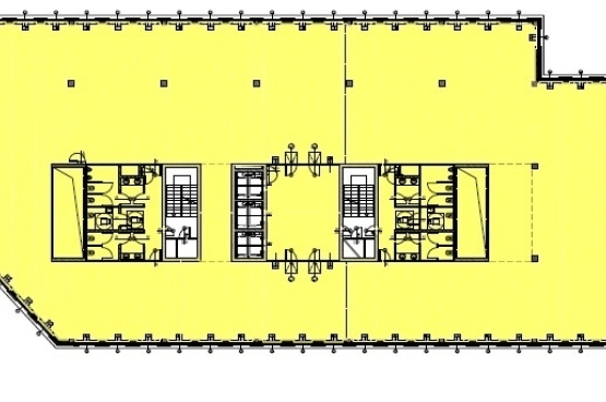
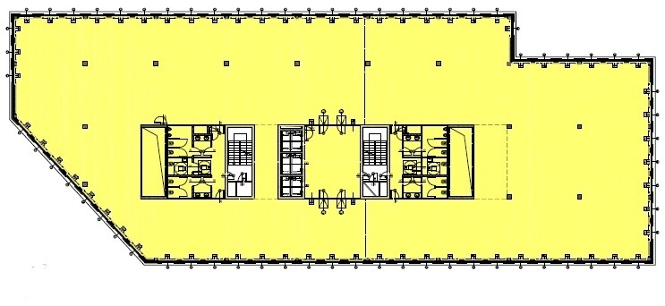
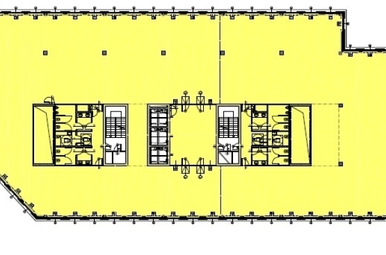
Area: 3000.00 m²
Rent per sqm: 14.75 EUR / m²
The royalty: 20.50 PLN / m²
Available areas: od 300.00 m² - do 8000.00 m²
SAVE TO PDF
SEND AN OFFER
TO YOUR E-MAIL
more
more
more

ABOUT BUILDING

Rent per sqm: 14.75 EUR / m²
The royalty: 20.50 PLN / m²
Total area: n/a m²
Factor: n/a
Year of construction: 2020

LOCATION

SIMILAR OFFERS