Linkedin
21 April 2026 | EXCHANGE RATE EUR 4.2661 PLN
pl | en

+48 22 11 200 11

Biuro do wynajęcia Łódź

Number: 138899/3105/OLW
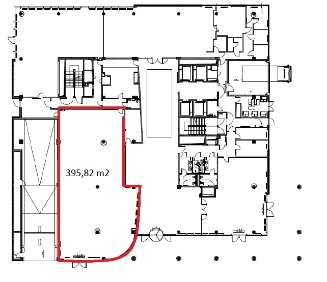
Area: 864.00 m²
Rent per sqm: 13.00 EUR / m²
The royalty: 24.50 PLN / m²
Available areas: od 268.00 m² - do 1817.00 m²
SAVE TO PDF
SEND AN OFFER
TO YOUR E-MAIL
more
more
more
Sterlinga Business Center is a modern office complex located in a strategic part of the city, offering high-quality office space for companies that want to set new standards. The central location provides easy access to key institutions, services and business facilities. Excellent connectivity to other parts of the city facilitates business travel and customer interactions. Sterlinga Business Center is distinguished by its modern design and innovative technological solutions, which guarantee comfort and efficiency of work for tenants. Additionally, the complex offers various amenities such as meeting spaces, recreational areas and restaurants.

ABOUT BUILDING

Rent per sqm: 13.00 EUR / m²
The royalty: 24.50 PLN / m²
Total area: n/a m²
Factor: n/a
Year of construction: 2010

LOCATION

SIMILAR OFFERS