Linkedin
17 April 2026 | EXCHANGE RATE EUR 4.2661 PLN
pl | en

+48 22 11 200 11

Biuro do wynajęcia Warszawa Wola

Number: 65739/3105/OLW
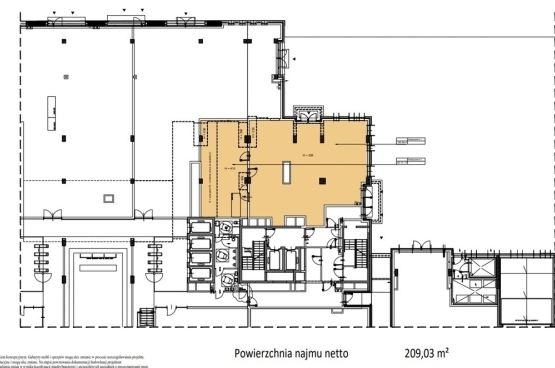
Area: 216.00 m²
Rent per sqm: 20.00 EUR / m²
The royalty: 23.90 PLN / m²
Available areas: od 216.00 m² - do 262.00 m²
SAVE TO PDF
SEND AN OFFER
TO YOUR E-MAIL
more
more
more

ABOUT BUILDING

Rent per sqm: 20.00 EUR / m²
The royalty: 23.90 PLN / m²
Total area: n/a m²
Factor: n/a
Year of construction: 2014

LOCATION

SIMILAR OFFERS