Linkedin
4 February 2026 | EXCHANGE RATE EUR 4.2661 PLN
pl | en

+48 22 11 200 11

Biuro do wynajęcia Warszawa Mokotów

Number: 70799/3105/OLW
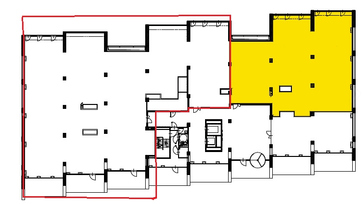
Area: 891.00 m²
Rent per sqm: 13.50 EUR / m²
The royalty: 22.00 PLN / m²
Available areas: od 655.44 m² - do 891.00 m²
SAVE TO PDF
SEND AN OFFER
TO YOUR E-MAIL
more
more
more
A modern design of an office complex consisting of four cascaded office buildings located in the heart of the business part of Mokotów. The shape of the block is supposed to refer to the former industrial character of the district, and at the same time meet the highest standards of a modern office. The interiors will combine the rawness of structural elements with high-class finishing elements, and the prestige will be enhanced by green terraces, which ensure high comfort of work. In addition to numerous parking spaces, the investor will also create space for bicycles. The location provides convenient access by public transport and by car.

ABOUT BUILDING

Rent per sqm: 13.50 EUR / m²
The royalty: 22.00 PLN / m²
Total area: n/a m²
Factor: n/a
Year of construction: 2018

LOCATION

SIMILAR OFFERS