Linkedin
4 February 2026 | EXCHANGE RATE EUR 4.2661 PLN
pl | en

+48 22 11 200 11

Biuro do wynajęcia Warszawa Śródmieście

Number: 71819/3105/OLW
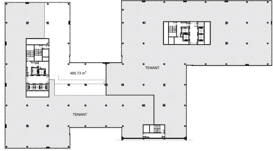
Area: 890.00 m²
Rent per sqm: 19.50 EUR / m²
The royalty: 22.89 PLN / m²
Available areas: od 890.00 m² - do 890.00 m²
SAVE TO PDF
SEND AN OFFER
TO YOUR E-MAIL
more
more
more
A + class office space in a modern office complex, which consists of four buildings with a total leasable area of almost 100,000 sq m. The building has been designed in accordance with the standards of the BREEAM environmental certificate. Excellent transport accessibility: within a distance of max. 150 m metro station, railway station, bus and tram stops. The best location in Warsaw, combined with a very high standard, makes this place an ideal space for the headquarters of many renowned companies with a global reach. An additional advantage is the surface car park for guests.

ABOUT BUILDING

Rent per sqm: 19.50 EUR / m²
The royalty: 22.89 PLN / m²
Total area: n/a m²
Factor: n/a
Year of construction: 2016

LOCATION

SIMILAR OFFERS