Linkedin
23 April 2026 | EXCHANGE RATE EUR 4.2661 PLN
pl | en

+48 22 11 200 11

Biuro do wynajęcia Warszawa Śródmieście

Number: 138841/3105/OLW
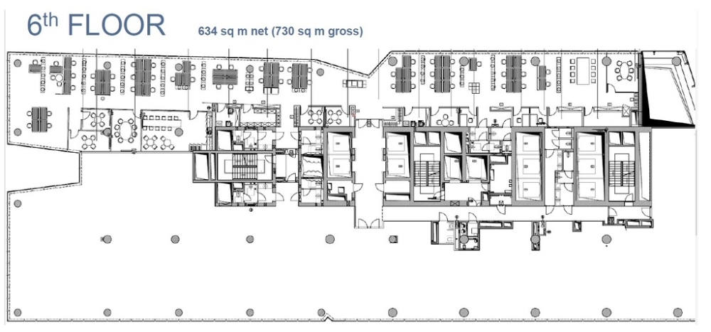
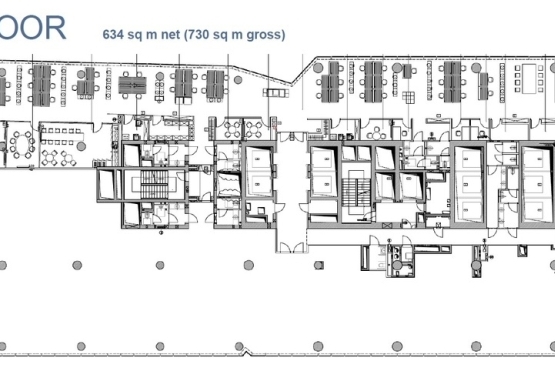
Area: 449.49 m²
Rent per sqm: 24.00 EUR / m²
The royalty: 30.60 PLN / m²
Available areas: od 60.00 m² - do 646.46 m²
SAVE TO PDF
SEND AN OFFER
TO YOUR E-MAIL
more
more
more

ABOUT BUILDING

Rent per sqm: 24.00 EUR / m²
The royalty: 30.60 PLN / m²
Total area: n/a m²
Factor: n/a
Year of construction: 2016

LOCATION

SIMILAR OFFERS