| Number: | 143194/3105/OLW |
|---|---|
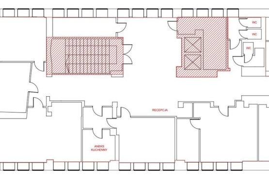
| Area: | 521.83 m² |
| Rent per sqm: | 50.00 PLN / m² |
| The royalty: | 30.00 PLN / m² |
| Available areas: | od 300.00 m² - do 521.83 m² |
| Rent per sqm: | 50.00 PLN / m² |
|---|---|
| The royalty: | 30.00 PLN / m² |
| Total area: | n/a m² |
| Factor: | n/a |
| Year of construction: | 1960 |


