Linkedin
21 April 2026 | EXCHANGE RATE EUR 4.2661 PLN
pl | en

+48 22 11 200 11

Biuro do wynajęcia Wrocław

Number: 27738/3105/OLW
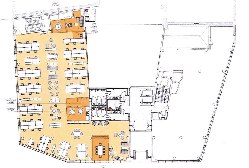
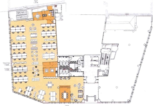
Area: 541.08 m²
Rent per sqm: 13.50 EUR / m²
The royalty: 30.79 PLN / m²
Available areas: od 541.08 m² - do 563.63 m²
SAVE TO PDF
SEND AN OFFER
TO YOUR E-MAIL
more
more
more
One of the most modern buildings in Wroclaw, which has 6 thousand. square meters of office space on 7 floors. The building was built to the highest standard and modern design increases the attractiveness of the investment. A striking glass façade of the top floor emphasizes the unique character of the building and creates a unique space for office space. Direct location at the train station Wroclaw Central makes very easy to reach by public transport. The underground garage offers 28 parking spaces. Tenants will be able to arrange any surface.

ABOUT BUILDING

Rent per sqm: 13.50 EUR / m²
The royalty: 30.79 PLN / m²
Total area: n/a m²
Factor: n/a
Year of construction: 2016

LOCATION

SIMILAR OFFERS