Linkedin
17 kwietnia 2026 | ŚREDNI KURS EUR 4.2661 PLN
pl | en

Biuro do wynajęcia Gdańsk

Numer: 71163/3105/OLW
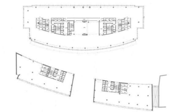
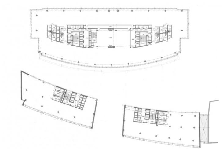
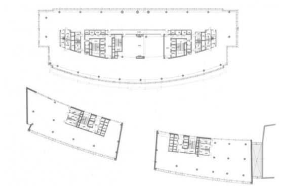
Powierzchnia: 1351.00 m²
Czynsz za mkw: 13.50 EUR / m²
Oplata eksploatacyjna: 23.00 PLN / m²
Dostępne powierzchnie: od 100.00 m² - do 1680.00 m²
ZAPISZ DO PDF
WYŚLIJ OFERTĘ
NA SWÓJ E-MAIL
więcej
więcej
więcej
Tryton Business House to nowoczesny kompleks budynków biurowych klasy A, usytuowany w prestiżowej dzielnicy Młode Miasto. Na tym obszarze historia przeplata się z nowoczesnością dzięki rewitalizacji terenów postoczniowych. Biurowce są położone naprzeciwko najbardziej charakterystycznych punktów Gdańska - Pomnika Poległych Stoczniowców 1970 i Europejskiego Centrum Solidarności. Monumentalna architektura i prestiżowa lokalizacja sprawiają, że obiekt jest łatwo rozpoznawalny i znakomicie wyeksponowany. GLA BOMA: 16 493 m. kw. Budynek posiad 8 kondygnacji naziemnych oraz 1 podziemna. Miejsca parkingowe: 174 Windy: 4 Udogodnienia: • Atrakcyjne biura dostosowane do potrzeb najemców • Przestrzeń coworkingowa, nowoczesne miejsca do pracy wspólnej • Profesjonalne sale do spotkań i konferencji • Restauracje, kawiarnie, klub fitness, centrum medyczne • Wysoki standard wykończenia, proekologiczne rozwiązania z certyfikatem BREEAM, elastyczna aranżacja przestrzeni, duże przeszklenia zapewniające optymalny dostęp światła dziennego • Miejsca parkingowe naziemne, jak i podziemne • Infrastruktura dla rowerzystów • Liczne połączenia autobusowe, tramwajowe i kolejowe w pobliżu • Kompleks jest blisko Stoczni Gdańsk SA, Galerii Handlowej Madison, głównego dworca kolejowego, oraz gdańskiej starówki. Dojazd samochodem do dworca Gdańsk Główny zajmuje mniej niż 5 minut, a do Portu Lotniczego Gdańsk około 20 minut. Aby uzyskać więcej informacji lub umówić się na prezentację budynku, prosimy o kontakt!

INFORMACJE O BUDYNKU

Czynsz za mkw: 13.50 EUR / m²
Oplata eksploatacyjna: 23.00 PLN / m²
Powierzchnia całkowita: brak danych m²
Współczynnik powierzchni wspólnych: brak danych
Rok budowy: 2015

LOKALIZACJA

PODOBNE OFERTY