Linkedin
21 kwietnia 2026 | ŚREDNI KURS EUR 4.2661 PLN
pl | en

Biuro do wynajęcia Gdańsk Oliwa

Numer: 140902/3105/OLW
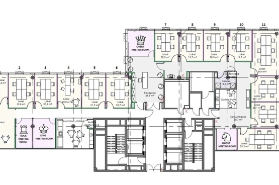
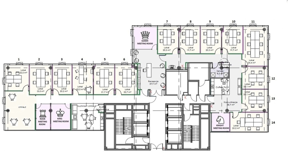
Powierzchnia: 700.00 m²
Czynsz za mkw: 15.00 EUR / m²
Oplata eksploatacyjna: 23.50 PLN / m²
Dostępne powierzchnie: od 100.00 m² - do 1270.00 m²
ZAPISZ DO PDF
WYŚLIJ OFERTĘ
NA SWÓJ E-MAIL
więcej
więcej
więcej
Adres: Olivia Center, Gdańsk Olivia Center, największy kompleks biurowych w północnej Polsce. Zlokalizowany w dynamicznie rozwijającej się dzielnicy biznesowej Gdańska. Znajduje się przy al. Grunwaldzkiej 472, w bezpośrednim sąsiedztwie przystanków komunikacji miejskiej (autobusy, tramwaje, SKM). Bliskość głównych arterii komunikacyjnych oraz stacji kolejowej Gdańsk Przymorze-Uniwersytet zapewnia szybki i łatwy dojazd do wszystkich części Trójmiasta. Kompleks oferuje nowoczesne i funkcjonalne przestrzenie biurowe, dostosowane do potrzeb nawet najbardziej wymagających najemców. Specyfikacja budynku: • Całkowita powierzchnia biurowa: ponad 120 000 m² • Dostępne powierzchnie biurowe do wynajęcia: od 200 m² do 10 000 m² • Liczba budynków: 8 (Olivia Gate, Olivia Point, Olivia Tower, Olivia Four, Olivia Six, Olivia Star, Olivia Prime A, Olivia Prime B) • Powierzchnia typowego piętra: od 1 500 m² do 3 000 m² • Liczba kondygnacji naziemnych: do 35 (Olivia Star) • Liczba kondygnacji podziemnych: 3 (parkingi, magazyny) • Certyfikaty: BREEAM, LEED (potwierdzające zastosowanie energooszczędnych i ekologicznych rozwiązań) Udogodnienia: • Profesjonalnie wyposażone sale konferencyjne i eventowe do wynajęcia • Szeroki wybór punktów gastronomicznych w obrębie kompleksu • Nowoczesne centrum fitness dostępne dla najemców • Infrastruktura rowerowa: miejsca rowerowe, szatnie, prysznice, stacja napraw • System zarządzania budynkiem: zaawansowany system BMS zapewniający komfort i bezpieczeństwo • Nowoczesne przestrzenie coworkingowe i biura serwisowane • Całodobowa ochrona i monitoring. Aby uzyskać więcej informacji lub umówić się na prezentację budynku, prosimy o kontakt!

INFORMACJE O BUDYNKU

Czynsz za mkw: 15.00 EUR / m²
Oplata eksploatacyjna: 23.50 PLN / m²
Powierzchnia całkowita: brak danych m²
Współczynnik powierzchni wspólnych: brak danych
Rok budowy: 2015

LOKALIZACJA

PODOBNE OFERTY