| Numer: | 137552/3105/OLW |
|---|---|
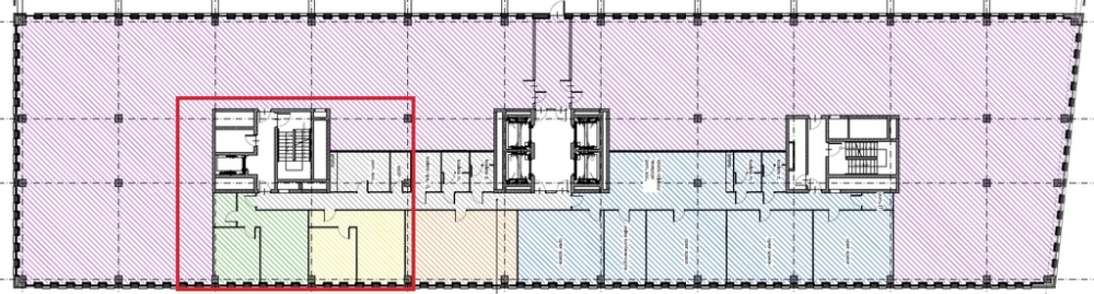
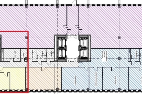
| Powierzchnia: | 654.00 m² |
| Czynsz za mkw: | 13.50 EUR / m² |
| Oplata eksploatacyjna: | 19.50 PLN / m² |
| Dostępne powierzchnie: | od 654.00 m² - do 1068.00 m² |
| Czynsz za mkw: | 13.50 EUR / m² |
|---|---|
| Oplata eksploatacyjna: | 19.50 PLN / m² |
| Powierzchnia całkowita: | brak danych m² |
| Współczynnik powierzchni wspólnych: | brak danych |
| Rok budowy: | 2017 |


