Linkedin
17 kwietnia 2026 | ŚREDNI KURS EUR 4.2661 PLN
pl | en

Biuro do wynajęcia Kraków Kraków-Podgórze

Numer: 139360/3105/OLW
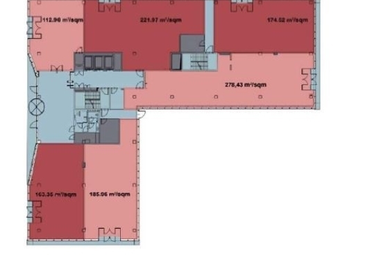
Powierzchnia: 240.00 m²
Czynsz za mkw: 14.00 EUR / m²
Oplata eksploatacyjna: 23.16 PLN / m²
Dostępne powierzchnie: od 240.00 m² - do 990.00 m²
ZAPISZ DO PDF
WYŚLIJ OFERTĘ
NA SWÓJ E-MAIL
więcej
więcej
więcej
Porto Office to nowoczesne i ekologiczne miejsce pracy, zlokalizowane w urokliwym otoczeniu Dębnik na zachodzie Krakowa. Biurowce stanowią integralną część kreatywnej przestrzeni miejskiej, gdzie praca łączy się z aktywnym wypoczynkiem. Porto A oferuje około 7 100 m2 powierzchni biurowej na czterech kondygnacjach naziemnych oraz jednej podziemnej. Wyjątkowy design budynku wpisuje się w zielone otoczenie, a wewnętrzne zielone patio dodaje uroku. Wysoki standard biura obejmuje nowoczesne technologie i przestronne wnętrza, a infrastruktura rowerowa oraz stacje ładowania dla samochodów elektrycznych podkreślają zrównoważony charakter kompleksu. Idealne położenie zapewnia szybki dojazd do centrum miasta, lotniska i głównych tras komunikacyjnych.

INFORMACJE O BUDYNKU

Czynsz za mkw: 14.00 EUR / m²
Oplata eksploatacyjna: 23.16 PLN / m²
Powierzchnia całkowita: brak danych m²
Współczynnik powierzchni wspólnych: brak danych
Rok budowy: 2018

LOKALIZACJA

PODOBNE OFERTY