Linkedin
17 kwietnia 2026 | ŚREDNI KURS EUR 4.2661 PLN
pl | en

Biuro do wynajęcia Kraków Kraków-Śródmieście

Numer: 139633/3105/OLW
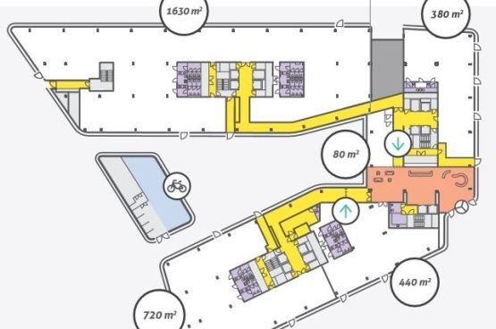
Powierzchnia: 2500.00 m²
Czynsz za mkw: 15.20 EUR / m²
Oplata eksploatacyjna: 20.00 PLN / m²
Dostępne powierzchnie: od 400.00 m² - do 3500.00 m²
ZAPISZ DO PDF
WYŚLIJ OFERTĘ
NA SWÓJ E-MAIL
więcej
więcej
więcej
V.Offices to nowoczesny budynke biurowy, który zachwyca swoją architekturą i funkcjonalnością. Zlokalizowany w sercu Starego Miasta sześciokondygnacyjny budynek oferuje powierzchnię najmu wynoszącą około 24 700 m2, przy jednoczesnej elastyczności aranżacyjnej. Plan w kształcie litery V tworzy wewnętrzne patio otoczone zielenią, zapewniając pracownikom przyjemną przestrzeń relaksu. V.Offices wyróżnia się także wysokim standardem wykończenia oraz zastosowaniem proekologicznych rozwiązań, co potwierdza uzyskany certyfikat BREEAM Outstanding "International New Construction".Podziemne miejsca parkingowe, stojaki i prysznice dla rowerzystów oraz stacje ładowania samochodów elektrycznych sprawiają, że obsługa codziennych potrzeb jest łatwa i wygodna. Położenie V.Offices w pobliżu Politechniki Krakowskiej, Galerii Krakowskiej oraz dworca kolejowego Kraków Główny zapewnia łatwy dostęp do wielu udogodnień miasta. Dogodny dojazd do innych dzielnic oraz lotniska im. Jana Pawła II w Balicach sprawia, że V.Offices jest doskonałym miejscem pracy zarówno dla lokalnych, jak i międzynarodowych firm.

INFORMACJE O BUDYNKU

Czynsz za mkw: 15.20 EUR / m²
Oplata eksploatacyjna: 20.00 PLN / m²
Powierzchnia całkowita: brak danych m²
Współczynnik powierzchni wspólnych: brak danych
Rok budowy: 2019

LOKALIZACJA

PODOBNE OFERTY