Linkedin
17 kwietnia 2026 | ŚREDNI KURS EUR 4.2661 PLN
pl | en

Biuro do wynajęcia Kraków Kraków-Śródmieście

Numer: 139803/3105/OLW
Powierzchnia: 2500.00 m²
Czynsz za mkw: 14.75 EUR / m²
Oplata eksploatacyjna: 20.50 PLN / m²
Dostępne powierzchnie: od 300.00 m² - do 8000.00 m²
ZAPISZ DO PDF
WYŚLIJ OFERTĘ
NA SWÓJ E-MAIL
więcej
więcej
więcej
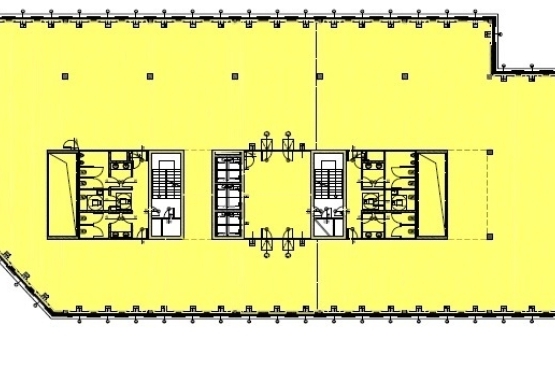
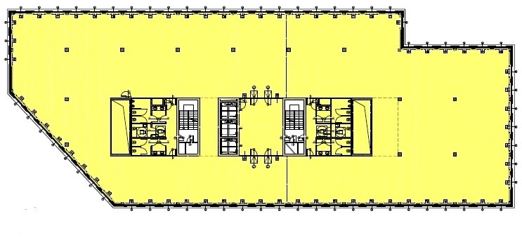
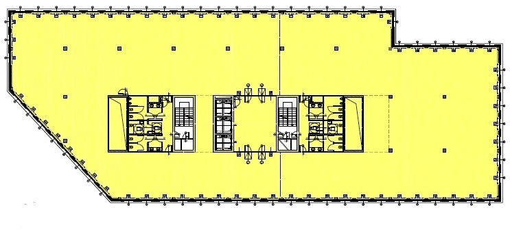
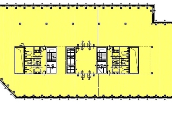
Unity Center to park biurowy składający się z pięciu budynków o różnych wysokościach, w tym imponujący Unity Tower liczący 27 pięter. Oferujący około 46 000 mkw powierzchni biurowej kompleks zawiera również ekskluzywne apartamenty i pięciogwiazdkowy hotel. Plac Unity łączy wszystkie budynki, umożliwiając dostęp do restauracji, kawiarni, sklepów i przestrzeni wystawienniczych. Certyfikat zielonego budownictwa zapewnia komfortowe warunki pracy dla potencjalnych najemców kompleksu. Udogodnienia obejmują restaurację na dachu, punkty handlowo-usługowe oraz duże zaplecze parkingowe, w tym miejsca dla rowerów i samochodów elektrycznych. Budynek zlokalizowany w dzielnicy Grzegórzki, niedaleko Starego Miasta, zapewnia dogodny dostęp do transportu publicznego i głównych dróg, ułatwiając zwiedzanie krakowskich atrakcji. Budynek One oferuje przestronne i funkcjonalne pomieszczenia dla różnorodnych przedsiębiorstw.Powierzchnia typowego piętra wynosi około 1800 m².

INFORMACJE O BUDYNKU

Czynsz za mkw: 14.75 EUR / m²
Oplata eksploatacyjna: 20.50 PLN / m²
Powierzchnia całkowita: brak danych m²
Współczynnik powierzchni wspólnych: brak danych
Rok budowy: 2020

LOKALIZACJA

PODOBNE OFERTY