Linkedin
21 kwietnia 2026 | ŚREDNI KURS EUR 4.2661 PLN
pl | en

Biuro do wynajęcia Warszawa Śródmieście

Numer: 70385/3105/OLW
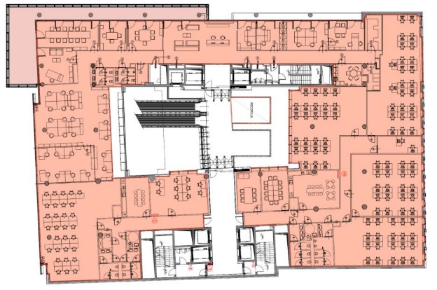
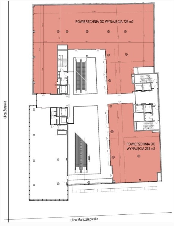
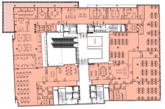
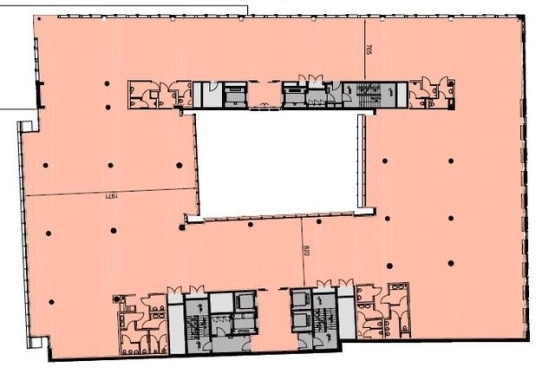
Powierzchnia: 380.00 m²
Czynsz za mkw: 23.50 EUR / m²
Oplata eksploatacyjna: 29.00 PLN / m²
Dostępne powierzchnie: od 292.00 m² - do 1681.00 m²
ZAPISZ DO PDF
WYŚLIJ OFERTĘ
NA SWÓJ E-MAIL
więcej
więcej
więcej
Wolf Marszałkowska to elegancki budynek biurowy o 12 kondygnacjach naziemnych i 5 podziemnych, oferujący około 11 359 m² powierzchni do wynajęcia. Znajduje się przy ulicy Marszałkowskiej 89 w ścisłym centrum Warszawy. Budynek ten zapewnia dostęp do około 140 miejsc parkingowych na poziomie podziemnym. Powierzchnia typowego piętra wynosi około 1 700 m². To miejsce, w którym poczujesz różnicę – granitowe wnętrza, ekskluzywny hol, ruchome schody i taras na ósmym piętrze, a także czteropiętrowy parking. Jeśli szukasz atrakcyjnej oferty wynajmu biurka, Wolf Marszałkowska oferuje również przestrzenie coworkingowe, zarówno hot-deski na open space, jak i prywatne pokoje biurowe oraz liczne sale konferencyjne.

INFORMACJE O BUDYNKU

Czynsz za mkw: 23.50 EUR / m²
Oplata eksploatacyjna: 29.00 PLN / m²
Powierzchnia całkowita: brak danych m²
Współczynnik powierzchni wspólnych: brak danych
Rok budowy: 2010

LOKALIZACJA

PODOBNE OFERTY