Linkedin
17 kwietnia 2026 | ŚREDNI KURS EUR 4.2661 PLN
pl | en

Biuro do wynajęcia Warszawa Śródmieście

Numer: 134719/3105/OLW
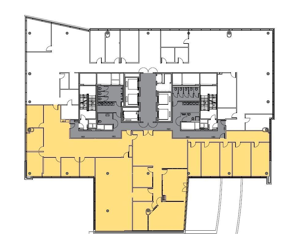
Powierzchnia: 810.00 m²
Czynsz za mkw: 20.50 EUR / m²
Oplata eksploatacyjna: 25.50 PLN / m²
Dostępne powierzchnie: od 327.00 m² - do 1373.00 m²
ZAPISZ DO PDF
WYŚLIJ OFERTĘ
NA SWÓJ E-MAIL
więcej
więcej
więcej
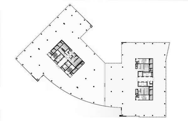
Wysokiego standardu powierzchnia biurowa w biurowcu klasy A w bezpośrednim sąsiedztwie stacji metra Politechnika. Powierzchnia zlokalizowana jest na0 piętrze, na którym do dyspozycji Najemcy jest taras. Budynek posiada dwa niezależne wejścia główne i 3-kondygnacyjny parking zapewniający 134 miejsc parkingowych. Obiekt oferuje wszelkie udogodnienia np. okablowanie strukturalne, podnoszone podłogi, podwieszane sufity, klimatyzację, czujniki dymu oraz tryskacze. Oprócz dostępu do metra w odległości 2-3 minut znajdują się przystanki autobusowe oraz tramwajowe. Do ceny najmu dochodzą opłaty eksploatacyjne, współczynnik powierzchni wspólnej i media.

INFORMACJE O BUDYNKU

Czynsz za mkw: 20.50 EUR / m²
Oplata eksploatacyjna: 25.50 PLN / m²
Powierzchnia całkowita: brak danych m²
Współczynnik powierzchni wspólnych: brak danych
Rok budowy: 2006

LOKALIZACJA

PODOBNE OFERTY