Linkedin
21 kwietnia 2026 | ŚREDNI KURS EUR 4.2661 PLN
pl | en

Biuro do wynajęcia Warszawa Śródmieście

Numer: 134816/3105/OLW
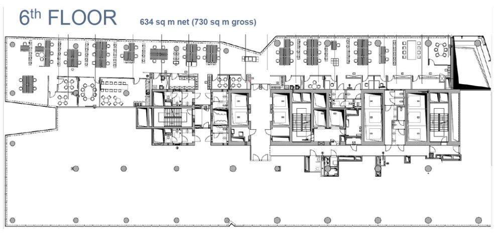
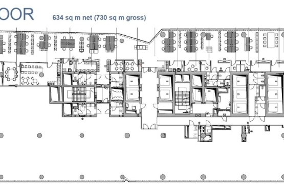
Powierzchnia: 540.37 m²
Czynsz za mkw: 24.00 EUR / m²
Oplata eksploatacyjna: 30.60 PLN / m²
Dostępne powierzchnie: od 60.00 m² - do 646.46 m²
ZAPISZ DO PDF
WYŚLIJ OFERTĘ
NA SWÓJ E-MAIL
więcej
więcej
więcej
Q22 to nowoczesny, prestiżowy biurowiec zlokalizowany przy alei Jana Pawła II 22 w samym sercu Warszawy. Ta centralna lokalizacja zapewnia doskonałe połączenia komunikacyjne z innymi częściami miasta dzięki bliskości stacji metra, licznych linii tramwajowych i autobusowych. W okolicy znajdują się również liczne restauracje, hotele, centra handlowe oraz instytucje finansowe, co czyni Q22 idealnym miejscem dla firm ceniących sobie prestiż i wygodę. Q22 to idealne miejsce dla firm poszukujących nowoczesnej, funkcjonalnej i prestiżowej przestrzeni biurowej w Warszawie. Dzięki najwyższemu standardowi wykończenia, nowoczesnym udogodnieniom oraz strategicznej lokalizacji, Q22 jest doskonałym wyborem dla przedsiębiorstw z różnych branż. Aby uzyskać więcej informacji na temat dostępnych powierzchni biurowych oraz warunków najmu, prosimy o kontakt z naszym biurem.

INFORMACJE O BUDYNKU

Czynsz za mkw: 24.00 EUR / m²
Oplata eksploatacyjna: 30.60 PLN / m²
Powierzchnia całkowita: brak danych m²
Współczynnik powierzchni wspólnych: brak danych
Rok budowy: 2016

LOKALIZACJA

PODOBNE OFERTY