Linkedin
21 kwietnia 2026 | ŚREDNI KURS EUR 4.2661 PLN
pl | en

Biuro do wynajęcia Warszawa Wola

Numer: 134854/3105/OLW
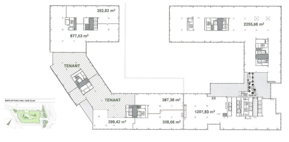
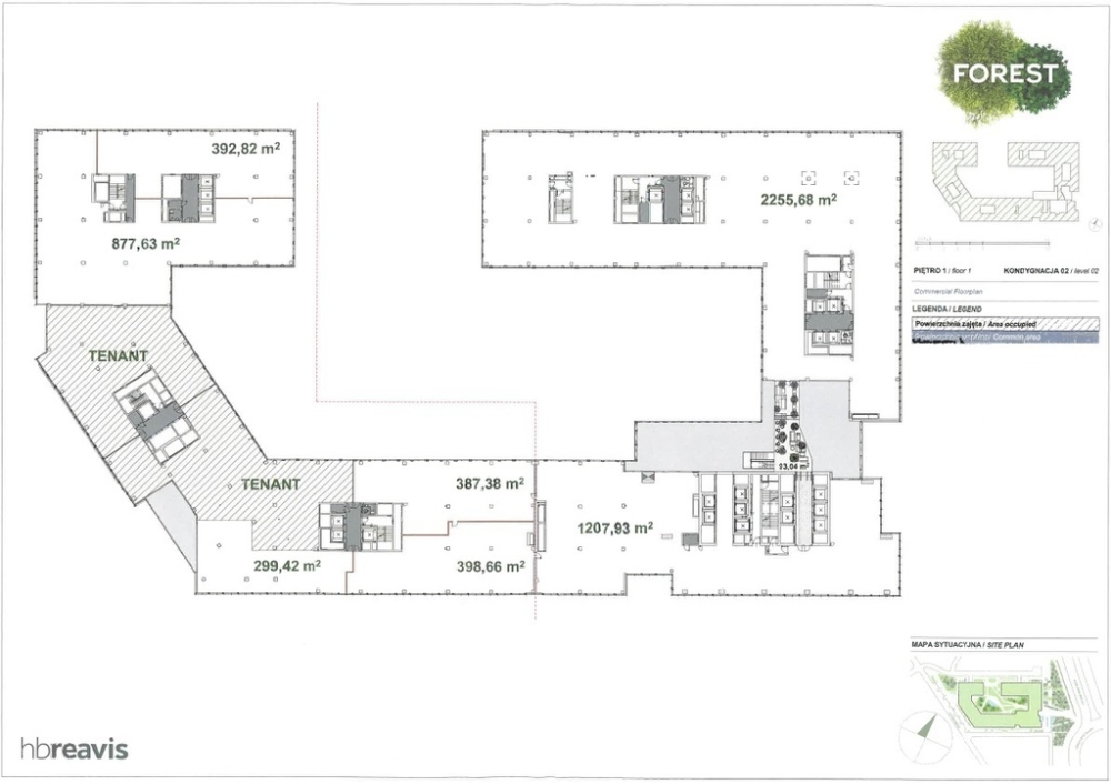
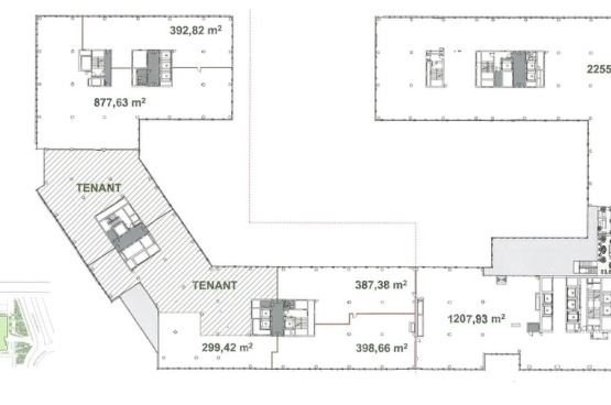
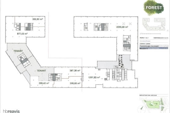
Powierzchnia: 321.00 m²
Czynsz za mkw: na zapytanie
Oplata eksploatacyjna: 29.50 PLN / m²
Dostępne powierzchnie: od 321.00 m² - do 520.00 m²
ZAPISZ DO PDF
WYŚLIJ OFERTĘ
NA SWÓJ E-MAIL
więcej
więcej
więcej
Kompleks biurowo-usługowy, zlokalizowany na pograniczu Woli oraz Żoliborza, tuż przy CH Arkadia. W pobliżu Dworzec Gdański, metro, linie tramwajowe i autobusowe oraz Veturilo. Projekt zakłada stworzenie kampusu miejskiego z obszerną strefą zieleni, tarasami, ogrodem na dachu, ogólnodostępnym patio. Do użytku najemców oddane zostanie ok. 76000 m2 przestrzeni oraz 1055 miejsc parkingowych. W kompleksie dostępne będą: centrum fitness, przedszkole, centrum coworkingowe/biura serwisowane, przestrzeń eventowa, zróżnicowana oferta gastronomiczna, a także powierzchnie magazynowe.

INFORMACJE O BUDYNKU

Czynsz za mkw: 0.00 EUR / m²
Oplata eksploatacyjna: 29.50 PLN / m²
Powierzchnia całkowita: brak danych m²
Współczynnik powierzchni wspólnych: brak danych
Rok budowy: 2021

LOKALIZACJA

PODOBNE OFERTY