Linkedin
21 kwietnia 2026 | ŚREDNI KURS EUR 4.2661 PLN
pl | en

Biuro do wynajęcia Warszawa

Numer: 134866/3105/OLW
Powierzchnia: 368.00 m²
Czynsz za mkw: 15.00 EUR / m²
Oplata eksploatacyjna: 31.52 PLN / m²
Dostępne powierzchnie: od 214.00 m² - do 368.00 m²
ZAPISZ DO PDF
WYŚLIJ OFERTĘ
NA SWÓJ E-MAIL
więcej
więcej
więcej
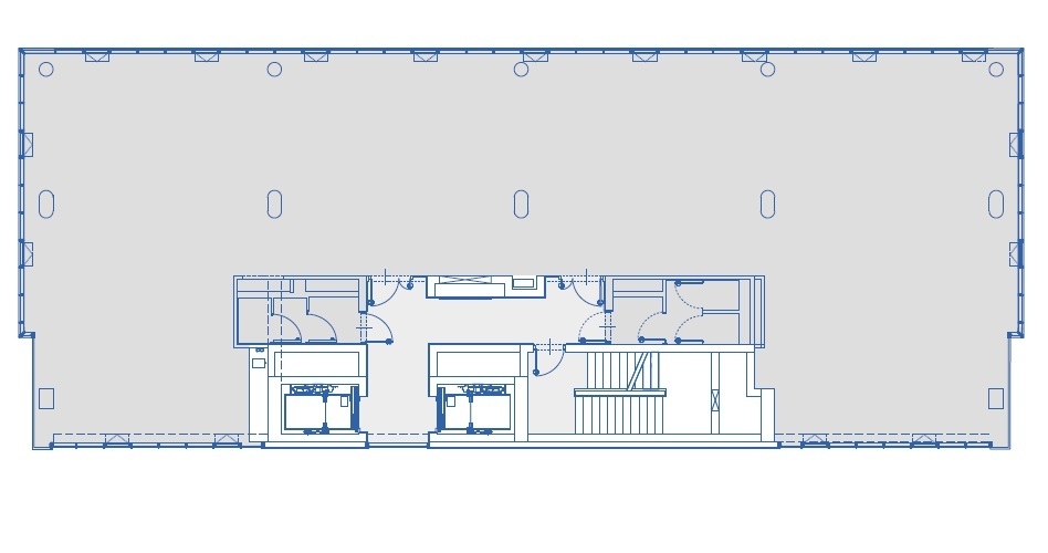
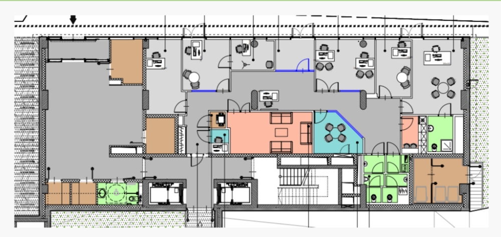
Powierzchnia w 8-kondygnacyjnym biurowcu klasy A, który oferuje ok. 2 600 m2 nowoczesnej powierzchni. Typowa kondygnacja biurowa ma ok. 387 m2. Budynek znajduje się w biznesowej części warszawskiego Mokotowa. Lokalizacja zapewnia komfortowy dojazd do budynku dzięki licznym liniom tramwajowym i autobusowym. Ponadto, przy biurowcu umieszczona zostanie stacja rowerów miejskich. Dojście z budynku do centrum handlowego Galeria Mokotów, bądź stacji metra zajmuje ok. 15 minut. Budynek oferuje 40 miejsc parkingowych na 2 poziomach podziemnego parkingu. Zakończenie prac budowlanych zaplanowano na 3Q 2017.

INFORMACJE O BUDYNKU

Czynsz za mkw: 15.00 EUR / m²
Oplata eksploatacyjna: 31.52 PLN / m²
Powierzchnia całkowita: brak danych m²
Współczynnik powierzchni wspólnych: brak danych
Rok budowy: 2017

LOKALIZACJA

PODOBNE OFERTY