Linkedin
17 kwietnia 2026 | ŚREDNI KURS EUR 4.2661 PLN
pl | en

Biuro do wynajęcia Warszawa Mokotów

Numer: 137572/3105/OLW
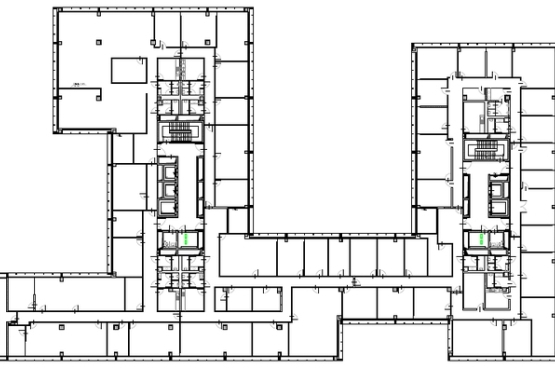
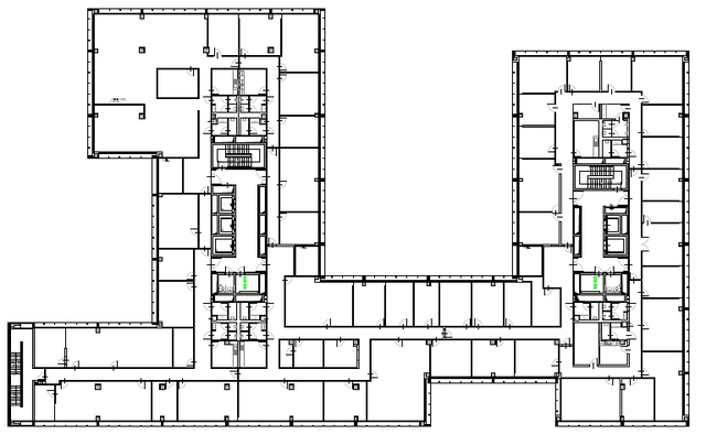
Powierzchnia: 585.00 m²
Czynsz za mkw: 14.50 EUR / m²
Oplata eksploatacyjna: 29.15 PLN / m²
Dostępne powierzchnie: od 248.00 m² - do 1425.00 m²
ZAPISZ DO PDF
WYŚLIJ OFERTĘ
NA SWÓJ E-MAIL
więcej
więcej
więcej
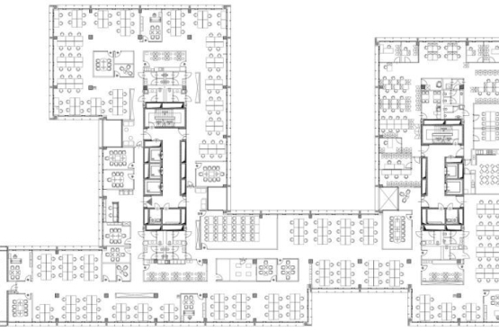
Biura do wynajęcia w Nefryt to część kompleksu biurowego przy ul. Domaniewskiej 39 na warszawskim Mokotowie. Budynek oferuje około 16 000 m² nowoczesnej powierzchni biurowej na 7 kondygnacjach. Przeszklona fasada zapewnia doskonały dostęp naturalnego światła. Dwupoziomowy parking podziemny oferuje 209 miejsc. Nefryt otrzymał certyfikat BREEAM in-use z oceną excellent w kategoriach Asset i Management, dzięki efektywności zarządzania i ekologii. Lokalizacja w pobliżu Galerii Mokotów zapewnia rozwinięte zaplecze gastronomiczne, handlowe i usługowe.

INFORMACJE O BUDYNKU

Czynsz za mkw: 14.50 EUR / m²
Oplata eksploatacyjna: 29.15 PLN / m²
Powierzchnia całkowita: brak danych m²
Współczynnik powierzchni wspólnych: brak danych
Rok budowy: 2008

LOKALIZACJA

PODOBNE OFERTY