Linkedin
4 lutego 2026 | ŚREDNI KURS EUR 4.2661 PLN
pl | en

Biuro do wynajęcia Warszawa Włochy

Numer: 138954/3105/OLW
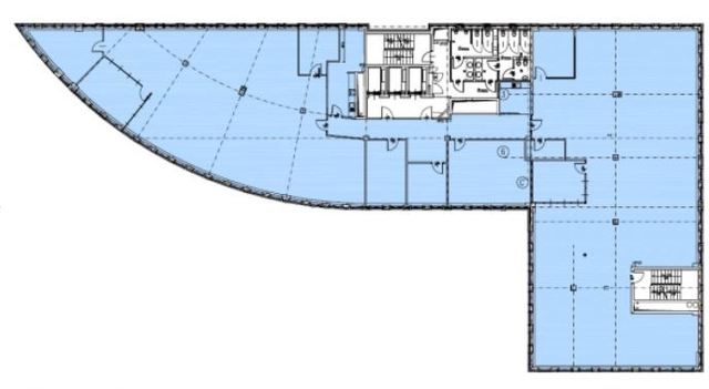
Powierzchnia: 462.90 m²
Czynsz za mkw: 12.95 EUR / m²
Oplata eksploatacyjna: 25.50 PLN / m²
Dostępne powierzchnie: od 323.75 m² - do 462.90 m²
ZAPISZ DO PDF
WYŚLIJ OFERTĘ
NA SWÓJ E-MAIL
więcej
więcej
więcej
Kopernik Office Building znajduje się przy Al. Jerozolimskich 180 w Warszawie, w dynamicznie rozwijającej się dzielnicy Włochy. Ta prestiżowa lokalizacja zapewnia doskonały dostęp do głównych arterii komunikacyjnych miasta, w tym bliskość tras S2 i S8, oraz środków transportu publicznego, takich jak przystanki autobusowe i pobliskie stacje kolejowe. Bliskość lotniska Chopina oraz centrów handlowych czyni tę lokalizację wyjątkowo atrakcyjną dla biznesu. Kopernik Office Building to prestiżowa lokalizacja oferująca nowoczesne i komfortowe przestrzenie biurowe w sercu biznesowej Warszawy. Zapraszamy do kontaktu w celu umówienia wizyty oraz przedstawienia szczegółowej oferty najmu.

INFORMACJE O BUDYNKU

Czynsz za mkw: 12.95 EUR / m²
Oplata eksploatacyjna: 25.50 PLN / m²
Powierzchnia całkowita: brak danych m²
Współczynnik powierzchni wspólnych: brak danych
Rok budowy: 2006

LOKALIZACJA

PODOBNE OFERTY