Linkedin
4 lutego 2026 | ŚREDNI KURS EUR 4.2661 PLN
pl | en

Biuro do wynajęcia Warszawa Śródmieście

Numer: 139082/3105/OLW
Powierzchnia: 395.00 m²
Czynsz za mkw: 19.50 EUR / m²
Oplata eksploatacyjna: 31.50 PLN / m²
Dostępne powierzchnie: od 200.00 m² - do 2928.00 m²
ZAPISZ DO PDF
WYŚLIJ OFERTĘ
NA SWÓJ E-MAIL
więcej
więcej
więcej
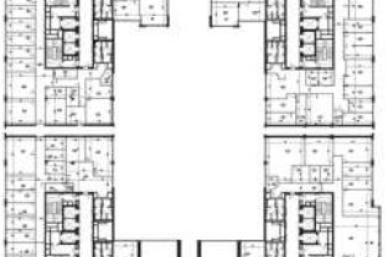
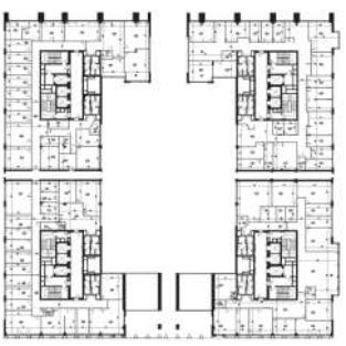
Nowoczesny budynek biurowy klasy A, zlokalizowany w południowej części Śródmieścia. Obiekt oferuje ponad 30 000 m2 powierzchni biurowej zlokalizowanej na 11 piętrach oraz 3-poziomowy parking podziemny. Biurowiec składa się z czterech całkowicie niezależnych i samowystarczalnych części. W obszernym atrium znajdują się m.in. restauracja, kawiarnia, klub fitness oraz centrum konferencyjne. Bardzo dogodna lokalizacja, w pobliżu stacji metra Politechnika oraz licznych środków komunikacji miejskiej zapewnia sprawne połączenia z pozostałymi dzielnicami. Zdjęcia w ogłoszeniu przedstawiają zdjęcia showroomu powierzchni jako przykładowej aranżacji. Standard techniczny: - klimatyzacja - podwieszany sufit - ochrona, recepcja - kontrola dostępu - światłowód - uchylne okna W budynku dostępne są również inne powierzchnie. Po szczegóły zapraszamy do kontaktu z naszym biurem.

INFORMACJE O BUDYNKU

Czynsz za mkw: 19.50 EUR / m²
Oplata eksploatacyjna: 31.50 PLN / m²
Powierzchnia całkowita: brak danych m²
Współczynnik powierzchni wspólnych: brak danych
Rok budowy: 2001

LOKALIZACJA

PODOBNE OFERTY