Linkedin
4 lutego 2026 | ŚREDNI KURS EUR 4.2661 PLN
pl | en

Biuro do wynajęcia Warszawa Śródmieście

Numer: 140510/3105/OLW
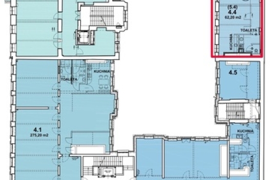
Powierzchnia: 220.00 m²
Czynsz za mkw: 21.00 EUR / m²
Oplata eksploatacyjna: 41.18 PLN / m²
Dostępne powierzchnie: od 57.00 m² - do 220.00 m²
ZAPISZ DO PDF
WYŚLIJ OFERTĘ
NA SWÓJ E-MAIL
więcej
więcej
więcej
Pasaż Lipińskiego oferuje około 3 400 m² nowoczesnej przestrzeni biurowej w dwóch częściach odrestaurowanej, zabytkowej kamienicy. Budynek zapewnia w pełni wykończone biura najwyższej jakości, w standardzie m.in.: klimatyzacja, podwieszane sufity, drewniane parkiety i uchylne okna. Stylowe wnętrza połączone z nowoczesnymi rozwiązaniami technicznymi tworzą unikalny charakter obiektu. Położony w ścisłym centrum Warszawy, przy Alejach Jerozolimskich, Pasaż Lipińskiego znajduje się w bezpośrednim sąsiedztwie Dworca Centralnego. Doskonały dostęp do metra, linii autobusowych, tramwajowych i pociągów stanowi ogromną zaletę lokalizacji. Dodatkowym udogodnieniem jest bliskość hoteli, sklepów, restauracji i obiektów handlowych.

INFORMACJE O BUDYNKU

Czynsz za mkw: 21.00 EUR / m²
Oplata eksploatacyjna: 41.18 PLN / m²
Powierzchnia całkowita: brak danych m²
Współczynnik powierzchni wspólnych: brak danych
Rok budowy: 1899

LOKALIZACJA

PODOBNE OFERTY