Linkedin
4 lutego 2026 | ŚREDNI KURS EUR 4.2661 PLN
pl | en

Biuro do wynajęcia Warszawa Mokotów

Numer: 140615/3105/OLW
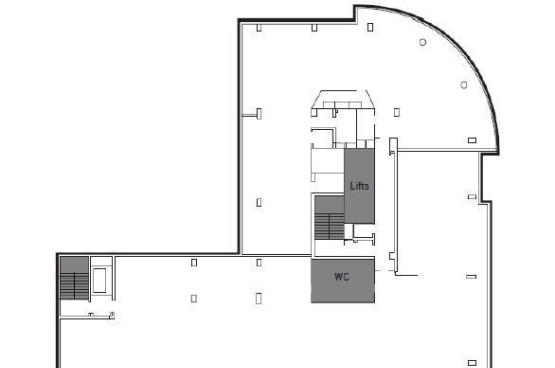
Powierzchnia: 525.00 m²
Czynsz za mkw: 14.50 EUR / m²
Oplata eksploatacyjna: 26.00 PLN / m²
Dostępne powierzchnie: od 525.00 m² - do 777.00 m²
ZAPISZ DO PDF
WYŚLIJ OFERTĘ
NA SWÓJ E-MAIL
więcej
więcej
więcej
Antares to nowoczesny biurowiec klasy A, położony na Służewcu, przy ulicy Marynarskiej. Oferuje około 9 400 m² powierzchni biurowej na 13 kondygnacjach oraz dostęp do miejsc parkingowych naziemnych i podziemnych. Powierzchnia typowego piętra biurowego wynosi około 780 m². Biurowiec zapewnia doskonałe warunki pracy, przeszkloną fasadę dla doświetlenia pomieszczeń oraz elastyczne przestrzenie, które można dostosować zarówno w systemie open space, jak i gabinetowym. Lokalizacja jest korzystna – znajduje się w pobliżu Galerii Mokotów, przystanków autobusowych i tramwajowych oraz stacji metra Wilanowska, Wierzbno i Pole Mokotowskie.

INFORMACJE O BUDYNKU

Czynsz za mkw: 14.50 EUR / m²
Oplata eksploatacyjna: 26.00 PLN / m²
Powierzchnia całkowita: brak danych m²
Współczynnik powierzchni wspólnych: brak danych
Rok budowy: 2003

LOKALIZACJA

PODOBNE OFERTY