Linkedin
17 kwietnia 2026 | ŚREDNI KURS EUR 4.2661 PLN
pl | en

Biuro do wynajęcia Warszawa Wola

Numer: 141935/3105/OLW
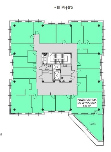
Powierzchnia: 1104.00 m²
Czynsz za mkw: 55.00 PLN / m²
Oplata eksploatacyjna: 25.00 PLN / m²
Dostępne powierzchnie: od 284.00 m² - do 1104.00 m²
ZAPISZ DO PDF
WYŚLIJ OFERTĘ
NA SWÓJ E-MAIL
więcej
więcej
więcej
Vipol Plaza to zespół budynków biurowych położonych przy ulicy Młynarskiej na warszawskiej Woli. Oferuje on atrakcyjną powierzchnię biurową na wynajem, rozmieszczoną na kilku kondygnacjach naziemnych. Budynek zapewnia dostęp do naziemnych oraz podziemnych miejsc parkingowych i jest usytuowany w lokalizacji zapewniającej bardzo dobry dostęp do środków transportu publicznego, w tym licznych połączeń tramwajowych oraz autobusowych. Vipol Plaza IV, jeden z budynków kompleksu, oferuje około 5 200 m² całkowitej powierzchni biurowej, z powierzchnią typowego piętra wynoszącą około 820 m². Budynek został wyposażony w rozwiązania techniczne takie jak klimatyzacja, kontrola dostępu czy system przeciwpożarowy, co zapewnia komfortowe warunki pracy.

INFORMACJE O BUDYNKU

Czynsz za mkw: 55.00 PLN / m²
Oplata eksploatacyjna: 25.00 PLN / m²
Powierzchnia całkowita: brak danych m²
Współczynnik powierzchni wspólnych: brak danych
Rok budowy: 2006

LOKALIZACJA

PODOBNE OFERTY