Linkedin
17 kwietnia 2026 | ŚREDNI KURS EUR 4.2661 PLN
pl | en

Biuro do wynajęcia Warszawa Żoliborz

Numer: 143196/3105/OLW
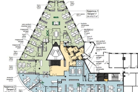
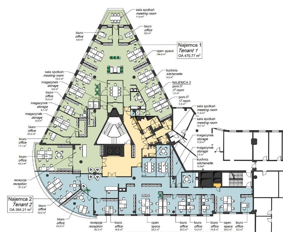
Powierzchnia: 529.02 m²
Czynsz za mkw: 13.60 EUR / m²
Oplata eksploatacyjna: 37.00 PLN / m²
Dostępne powierzchnie: od 431.75 m² - do 529.02 m²
ZAPISZ DO PDF
WYŚLIJ OFERTĘ
NA SWÓJ E-MAIL
więcej
więcej
więcej
Do wynajęcia powierzchnia w wysokim standardzie na Żoliborzu dostępna od zaraz. Biurowiec zlokalizowany jest przy ulicy Powązkowskiej, w bliskiej odległości od centrum miasta. Standard techniczny: - podnoszone podłogi - podwieszane sufity - klimatyzacja - kontrola dostępu - światłowód - recepcja/ ochrona Warunki finansowe: wyjściowy czynsz: 13,60 EUR/ m kw. opłaty eksploatacyjne: 37,00 PLN/ m kw. Możliwość rozmowy o większej bądź mniejszej powierzchni. Przedmiotem oferty jest część piętra. Możliwość rozmowy o większej powierzchni ok. 1 000 m kw. na jednej kondygnacji. Zdjęcia przedstawiają istniejący stan powierzchni.

INFORMACJE O BUDYNKU

Czynsz za mkw: 13.60 EUR / m²
Oplata eksploatacyjna: 37.00 PLN / m²
Powierzchnia całkowita: brak danych m²
Współczynnik powierzchni wspólnych: brak danych
Rok budowy: 2002

LOKALIZACJA

PODOBNE OFERTY