Wyszukiwarka
Biuro do wynajęcia Warszawa Mokotów
| Numer: |
143861/3105/OLW |
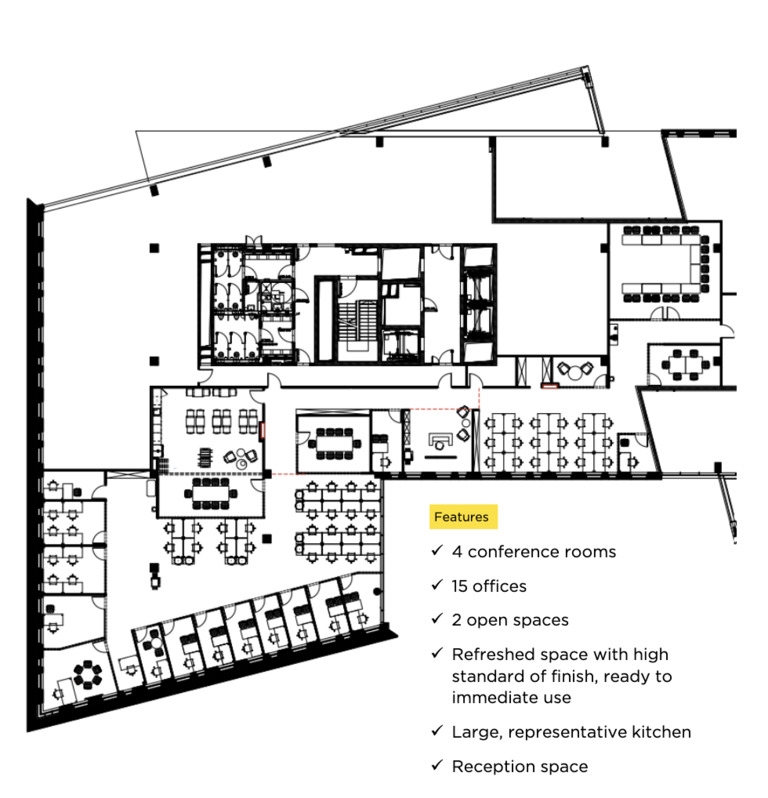
| Powierzchnia: |
812.00 m² |
| Czynsz za mkw: |
15.00 EUR / m² |
| Oplata eksploatacyjna: |
18.50 PLN / m² |
| Dostępne powierzchnie: |
od 812.00 m² - do 812.00 m² |
INFORMACJE O BUDYNKU
| Czynsz za mkw: |
15.00 EUR / m² |
| Oplata eksploatacyjna: |
18.50 PLN / m² |
| Powierzchnia całkowita: |
brak danych m² |
| Współczynnik powierzchni wspólnych: |
brak danych |
| Rok budowy: |
2018 |
LOKALIZACJA
PODOBNE OFERTY
-
Innova Workplace Station - Building A to 13-kondygnacyjny budynek biurowy, oferujący około 12 000 m2 nowoczesn ...
Zobacz więcej
-
Antares to nowoczesny biurowiec klasy A, położony na Służewcu, przy ulicy Marynarskiej. Oferuje około 9 400 m² ...
Zobacz więcej
-
Powierzchnia biurowa w nowoczesnym kompleksie biurowym w budynku C, składającym się z trzech obiektów w biznes ...
Zobacz więcej