Linkedin
21 kwietnia 2026 | ŚREDNI KURS EUR 4.2661 PLN
pl | en

Biuro do wynajęcia Warszawa Mokotów

Numer: 31285/3105/OLW
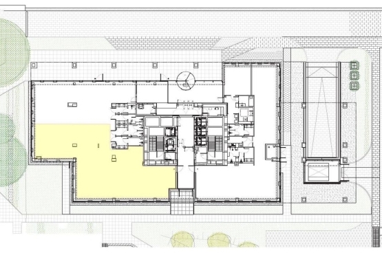
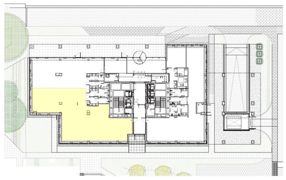
Powierzchnia: 227.00 m²
Czynsz za mkw: 15.00 EUR / m²
Oplata eksploatacyjna: 6.70 EUR / m²
Dostępne powierzchnie: od 227.00 m² - do 1394.00 m²
ZAPISZ DO PDF
WYŚLIJ OFERTĘ
NA SWÓJ E-MAIL
więcej
więcej
więcej
Platinium Business Park to nowoczesny kompleks biurowy składający się z kilku budynków o łącznej powierzchni biurowej wynoszącej kilkadziesiąt tysięcy metrów kwadratowych. Architektura budynków charakteryzuje się nowoczesnym designem z dużą ilością przeszkleń, co zapewnia doskonałe doświetlenie wnętrz. Platinium Business Park to miejsce, które łączy nowoczesność z funkcjonalnością, oferując przestrzeń do efektywnej pracy i rozwoju biznesu. Jego strategiczne położenie i wysoki standard wykończenia sprawiają, że jest to idealne miejsce dla firm poszukujących prestiżowej lokalizacji w sercu Warszawy.

INFORMACJE O BUDYNKU

Czynsz za mkw: 15.00 EUR / m²
Oplata eksploatacyjna: 6.70 EUR / m²
Powierzchnia całkowita: brak danych m²
Współczynnik powierzchni wspólnych: brak danych
Rok budowy: 2011

LOKALIZACJA

PODOBNE OFERTY