Linkedin
17 kwietnia 2026 | ŚREDNI KURS EUR 4.2661 PLN
pl | en

Biuro do wynajęcia Warszawa Mokotów

Numer: 64113/3105/OLW
Powierzchnia: 828.00 m²
Czynsz za mkw: 14.00 EUR / m²
Oplata eksploatacyjna: 23.00 PLN / m²
Dostępne powierzchnie: od 351.00 m² - do 1548.00 m²
ZAPISZ DO PDF
WYŚLIJ OFERTĘ
NA SWÓJ E-MAIL
więcej
więcej
więcej
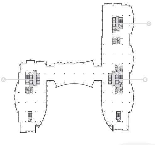
Najnowszej generacji budynek biurowy wyróżniający się elegancją i stylem architektonicznym. Obiekt oferuje ok. 35 000 m2 powierzchni zlokalizowanej na 11 kondygnacjach oraz ponad 1200 podziemnych miejsc parkingowych. Biurowiec wyposażony jest m.in. w w system klimatyzacji, podnoszone podłogi oraz podwieszane sufity. Przeszklona fasada oraz duże uchylne okna gwarantują doskonałą widoczność i doświetlenie oraz komfort pracy. Każde skrzydło budynku posiada swój własny hall wejściowy z recepcją, swoją klatkę schodową oraz własną komunikację windową. Lokalizacja w sercu biznesowego Mokotowa, w bezpośrednim sąsiedztwie Galerii Mokotów zapewnia bogaty wybór środków komunikacji miejskiej.

INFORMACJE O BUDYNKU

Czynsz za mkw: 14.00 EUR / m²
Oplata eksploatacyjna: 23.00 PLN / m²
Powierzchnia całkowita: brak danych m²
Współczynnik powierzchni wspólnych: brak danych
Rok budowy: 2010

LOKALIZACJA

PODOBNE OFERTY