Linkedin
22 kwietnia 2026 | ŚREDNI KURS EUR 4.2661 PLN
pl | en

Biuro do wynajęcia Wrocław

Numer: 134850/3105/OLW
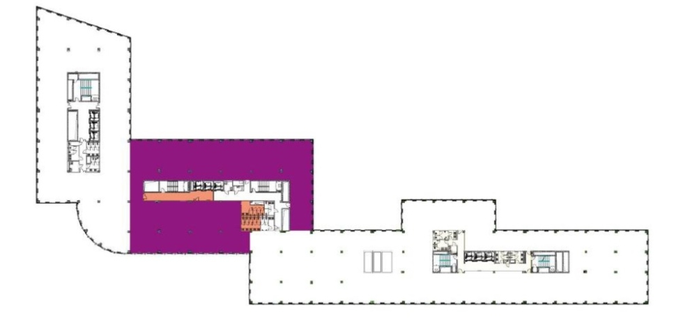
Powierzchnia: 2202.00 m²
Czynsz za mkw: 15.50 EUR / m²
Oplata eksploatacyjna: 29.00 PLN / m²
Dostępne powierzchnie: od 343.00 m² - do 2202.00 m²
ZAPISZ DO PDF
WYŚLIJ OFERTĘ
NA SWÓJ E-MAIL
więcej
więcej
więcej
Nowoczesna powierzchnia biurowa we wrocławskiej dzielnicy Krzyki. Budynek oferuje najemcom 20 837 m kw. powierzchni biurowej, zlokalizowanej na 7 piętrach. Obiekt dostarcza biura zaprojektowane zgodnie z certyfikacją zielonych budynków, co zapewnia oszczędność kosztów eksploatacyjnych i wysoką jakość środowiska pracy. Lokalizacja w pobliżu dworca Wrocław Główny zapewnia dogodne połączenia z pozostałymi częściami miasta oraz Polski, a także bogate zaplecze usługowe. Oferowana powierzchnia stanowi ok. połowę całego piętra.

INFORMACJE O BUDYNKU

Czynsz za mkw: 15.50 EUR / m²
Oplata eksploatacyjna: 29.00 PLN / m²
Powierzchnia całkowita: brak danych m²
Współczynnik powierzchni wspólnych: brak danych
Rok budowy: 2018

LOKALIZACJA

PODOBNE OFERTY