Linkedin
4 lutego 2026 | ŚREDNI KURS EUR 4.2661 PLN
pl | en

Biuro do wynajęcia Poznań

Numer: 71909/3105/OLW
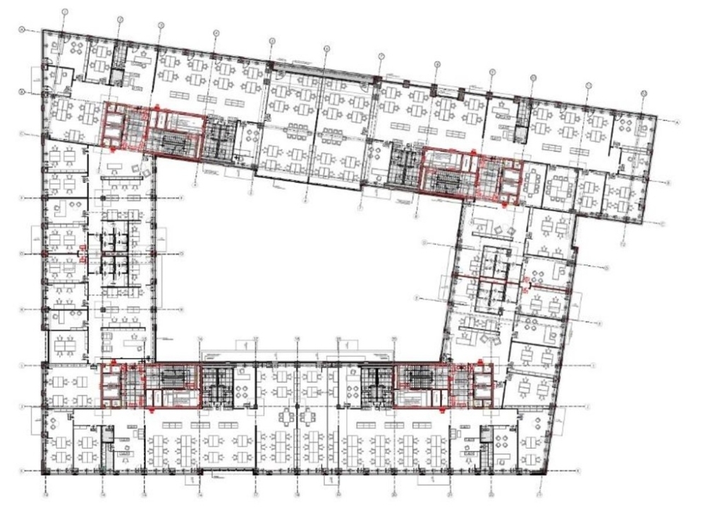
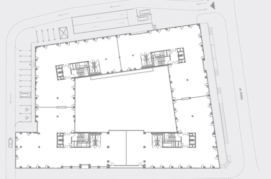
Powierzchnia: 3000.00 m²
Czynsz za mkw: 14.50 EUR / m²
Oplata eksploatacyjna: 20.00 PLN / m²
Dostępne powierzchnie: od 440.00 m² - do 3000.00 m²
ZAPISZ DO PDF
WYŚLIJ OFERTĘ
NA SWÓJ E-MAIL
więcej
więcej
więcej
Biurowiec klasy A realizowany z najwyższa dbałość o jakość. Budynek zlokalizowany jest na rogu ulic Górki i Głogowskiej. Oferować będzie łącznie 18 000 powierzchni użytkowej, 300 miejsc parkingowych oraz wszelkie udogodnienia dla najemców- stojaki rowerowe, stacje ładowania pojazdów elektrycznych oraz szereg usług handlowo- gastronomicznych. 9 szybkich wind i inteligentne systemy instalacyjne znacząco podniosą komfort pracy najemców. Ogólnodostępny taras będzie dodatkowym atutem. Budynek został oddany w połowie 2020 roku. Do ceny najmu dochodzą opłaty eksploatacyjne i opłaty za media.

INFORMACJE O BUDYNKU

Czynsz za mkw: 14.50 EUR / m²
Oplata eksploatacyjna: 20.00 PLN / m²
Powierzchnia całkowita: brak danych m²
Współczynnik powierzchni wspólnych: brak danych
Rok budowy: 2020

LOKALIZACJA

PODOBNE OFERTY