Linkedin
17 kwietnia 2026 | ŚREDNI KURS EUR 4.2661 PLN
pl | en

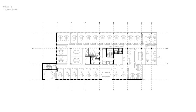
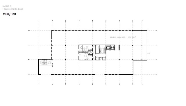
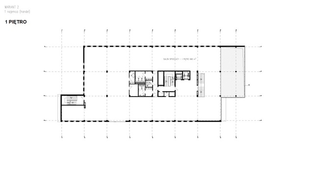
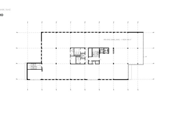
Biuro do wynajęcia Warszawa Ursynów

Numer: 65834/3105/OLW
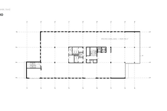
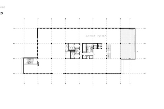
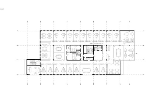
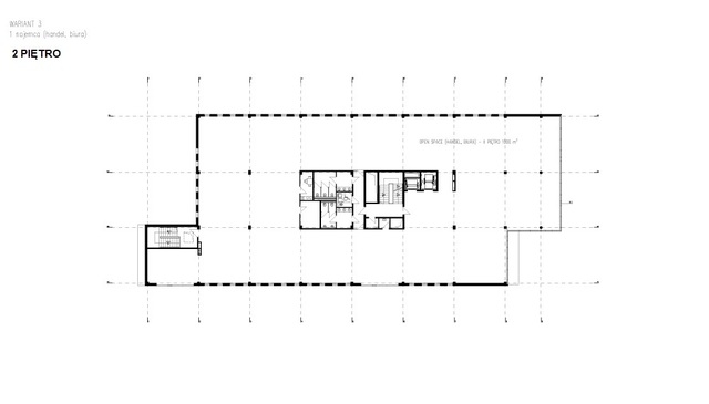
Powierzchnia: 520.00 m²
Czynsz za mkw: 15.00 EUR / m²
Oplata eksploatacyjna: 23.00 PLN / m²
Dostępne powierzchnie: od 520.00 m² - do 735.00 m²
ZAPISZ DO PDF
WYŚLIJ OFERTĘ
NA SWÓJ E-MAIL
więcej
więcej
więcej
Powierzchnia w nowym, ekskluzywnym i kameralnym budynku biurowym usytuowany na warszawskim Ursynowie, bezpośrednio przy ul. Puławskiej. Lokalizacja ta umożliwia najemcom sprawne połączenie samochodem oraz komunikacją miejską z centrum miasta oraz Lotniskiem im. Fryderyka Chopina. Dodatkowym atutem lokalizacji jest bliskość kilku centrów handlowych, najlepszych salonów samochodowych oraz autostrady (ok. 3,5km). Budynek stwarza nieograniczone możliwości aranżacji oraz pełen jest nowoczesnych rozwiązań technicznych i oferuje łącznie ok. 3000 m2 powierzchni do wynajęcia. Powierzchnia nadaje się pod działalność medyczną.

INFORMACJE O BUDYNKU

Czynsz za mkw: 15.00 EUR / m²
Oplata eksploatacyjna: 23.00 PLN / m²
Powierzchnia całkowita: brak danych m²
Współczynnik powierzchni wspólnych: brak danych
Rok budowy: 2016

LOKALIZACJA

PODOBNE OFERTY