Linkedin
17 kwietnia 2026 | ŚREDNI KURS EUR 4.2661 PLN
pl | en

Biuro do wynajęcia Warszawa Wola

Numer: 67694/3105/OLW
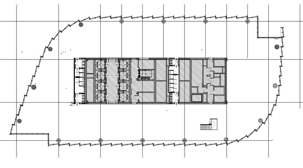
Powierzchnia: 1647.82 m²
Czynsz za mkw: 23.50 EUR / m²
Oplata eksploatacyjna: 21.00 PLN / m²
Dostępne powierzchnie: od 1647.82 m² - do 1647.82 m²
ZAPISZ DO PDF
WYŚLIJ OFERTĘ
NA SWÓJ E-MAIL
więcej
więcej
więcej
Kompleks biurowy powstający na Woli, zaoferuje blisko 65000 m2 nowoczesnej powierzchni biurowej w 130 m wieży oraz niższym, przyległym budynku. W obiekcie zostaną zastosowane najnowocześniejsze technologie, wysokiej jakości materiały oraz funkcjonalne rozwiązania architektoniczne. Szklana fasada z uchylnymi oknami zapewni pracownikom wysoki komfort pracy poprzez stały dostęp naturalnego światła. W kompleksie znajdzie się także 4500 m2 powierzchni handlowo-usługowej. Do dyspozycji najemców oddany zostanie 4-poziomowy parking naziemny. Lokalizacja zapewni sprawny dojazd dzięki obecności metra oraz linii tramwajowych i autobusowych.

INFORMACJE O BUDYNKU

Czynsz za mkw: 23.50 EUR / m²
Oplata eksploatacyjna: 21.00 PLN / m²
Powierzchnia całkowita: brak danych m²
Współczynnik powierzchni wspólnych: brak danych
Rok budowy: 2018

LOKALIZACJA

PODOBNE OFERTY