Linkedin
17 kwietnia 2026 | ŚREDNI KURS EUR 4.2661 PLN
pl | en

Biuro do wynajęcia Warszawa

Numer: 134327/3105/OLW
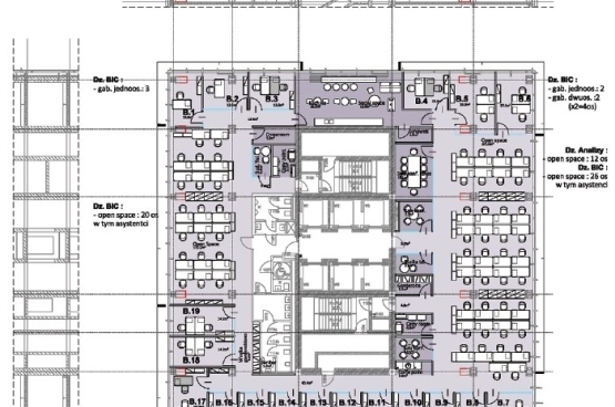
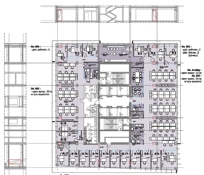
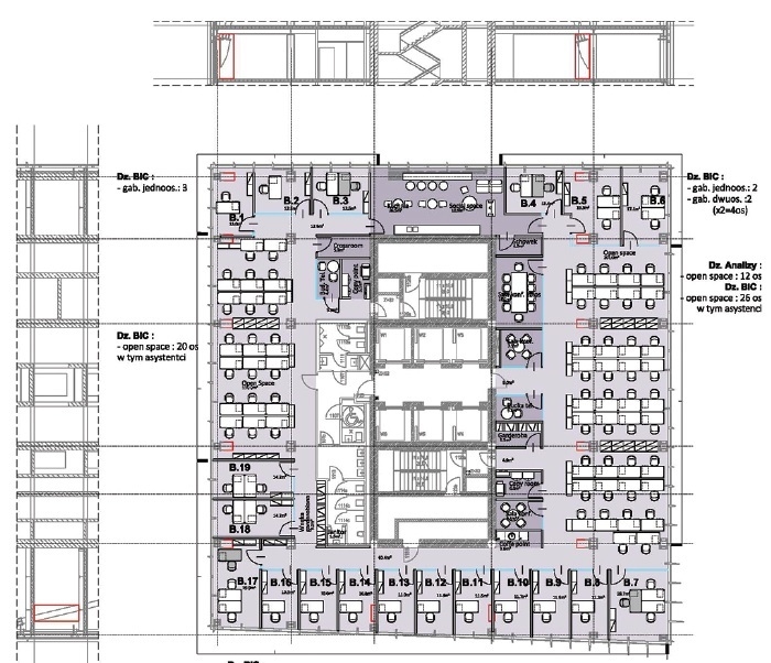
Powierzchnia: 950.00 m²
Czynsz za mkw: 26.50 EUR / m²
Oplata eksploatacyjna: 29.45 PLN / m²
Dostępne powierzchnie: od 28.00 m² - do 950.00 m²
ZAPISZ DO PDF
WYŚLIJ OFERTĘ
NA SWÓJ E-MAIL
więcej
więcej
więcej
Central Point to nowoczesny biurowiec w centrum Warszawy, oferujący 20 000 m² powierzchni do wynajęcia. Zlokalizowany przy skrzyżowaniu ul. Świętokrzyskiej i Marszałkowskiej, zapewnia dostęp do 80 miejsc parkingowych, stacji ładowania samochodów elektrycznych oraz parkingu dla rowerów. Biurowiec ma 21 kondygnacji z przeszklonymi elewacjami, które oferują widok na miasto. Elastyczna aranżacja przestrzeni i certyfikat ekologiczny BREEAM "Excellent" gwarantują wysoki standard. Central Point znajduje się nad wejściami do stacji I i II linii metra Świętokrzyska, co zapewnia doskonały dostęp do komunikacji publicznej.

INFORMACJE O BUDYNKU

Czynsz za mkw: 26.50 EUR / m²
Oplata eksploatacyjna: 29.45 PLN / m²
Powierzchnia całkowita: brak danych m²
Współczynnik powierzchni wspólnych: brak danych
Rok budowy: 2021

LOKALIZACJA

PODOBNE OFERTY