Linkedin
17 kwietnia 2026 | ŚREDNI KURS EUR 4.2661 PLN
pl | en

Biuro do wynajęcia Warszawa Ursynów

Numer: 134858/3105/OLW
Powierzchnia: 465.00 m²
Czynsz za mkw: 12.50 EUR / m²
Oplata eksploatacyjna: 29.00 PLN / m²
Dostępne powierzchnie: od 240.00 m² - do 465.00 m²
ZAPISZ DO PDF
WYŚLIJ OFERTĘ
NA SWÓJ E-MAIL
więcej
więcej
więcej
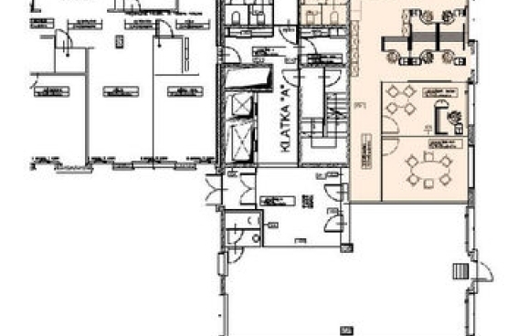
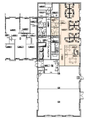
Ursynów Business Park oferuje 8.000 mkw powierzchni biurowej do wynajęcia na 6 kondygnacjach. Układ pięter pozwala na dowolną aranżację powierzchni. Obiekt posiada duży parking – na 33 mkw wynajętej powierzchni przypada 1 miejsce postojowe. Bezpieczeństwo użytkowania zapewniają monitoring, kontrola dostępu oraz 24-godzinna ochrona. Na terenie Ursynów Business Park znajduje się restauracja. Lokalizacja przy ul. Puławskiej, jednej z głównych arterii miejskich umożliwia szybki dojazd do centrum Warszawy oraz na lotnisko Okęcie (15 min.).

INFORMACJE O BUDYNKU

Czynsz za mkw: 12.50 EUR / m²
Oplata eksploatacyjna: 29.00 PLN / m²
Powierzchnia całkowita: brak danych m²
Współczynnik powierzchni wspólnych: brak danych
Rok budowy: 1997

LOKALIZACJA

PODOBNE OFERTY