Linkedin
21 kwietnia 2026 | ŚREDNI KURS EUR 4.2661 PLN
pl | en

Biuro do wynajęcia Warszawa Włochy

Numer: 139485/3105/OLW
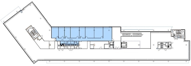
Powierzchnia: 1519.00 m²
Czynsz za mkw: 12.50 EUR / m²
Oplata eksploatacyjna: 24.00 PLN / m²
Dostępne powierzchnie: od 269.00 m² - do 1579.00 m²
ZAPISZ DO PDF
WYŚLIJ OFERTĘ
NA SWÓJ E-MAIL
więcej
więcej
więcej
Budynek biurowy Taifun, położony przy ulicy Jutrzenki 183 w Warszawie, to obiekt klasy B oferujący około 6 500 m² powierzchni biurowej do wynajęcia. Jest to 8-kondygnacyjny budynek, który zapewnia dostęp do około 65 naziemnych oraz 90 podziemnych miejsc parkingowych. Powierzchnia typowego piętra wynosi około 1 500 m². Budynek wyposażony jest w nowoczesne rozwiązania techniczne, takie jak klimatyzacja, kontrola dostępu, podwieszane sufity czy kable światłowodowe, co zapewnia komfortowe warunki pracy.

INFORMACJE O BUDYNKU

Czynsz za mkw: 12.50 EUR / m²
Oplata eksploatacyjna: 24.00 PLN / m²
Powierzchnia całkowita: brak danych m²
Współczynnik powierzchni wspólnych: brak danych
Rok budowy: 1999

LOKALIZACJA

PODOBNE OFERTY