Linkedin
4 lutego 2026 | ŚREDNI KURS EUR 4.2661 PLN
pl | en

Biuro do wynajęcia Warszawa Śródmieście

Numer: 140703/3105/OLW
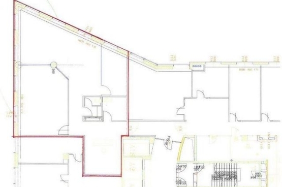
Powierzchnia: 109.00 m²
Czynsz za mkw: 17.00 EUR / m²
Oplata eksploatacyjna: 32.00 PLN / m²
Dostępne powierzchnie: od 109.00 m² - do 250.00 m²
ZAPISZ DO PDF
WYŚLIJ OFERTĘ
NA SWÓJ E-MAIL
więcej
więcej
więcej
Wspólna 47/49 to nowoczesny 8-kondygnacyjny biurowiec o powierzchni około 7 200 m² do wynajęcia. Przeszklona fasada umożliwia optymalne doświetlenie wnętrz naturalnym światłem. Budynek znajduje się w sąsiedztwie ul. Marszałkowskiej, jednej z głównych arterii miejskich. W okolicy są przystanki tramwajowe, autobusowe oraz stacja metra Centrum. W niedalekiej odległości znajduje się Dworzec Centralny, stacja SKM oraz CH Złote Tarasy. Standard biura obejmuje klimatyzację, kontrolę dostępu, okablowanie elektryczne, komputerowe i telefoniczne, a także otwierane okna. Dostępna powierzchnia wynosi 111–361 m², a stawka czynszu to 17 €/m². Biurowiec jest doskonale skomunikowany.

INFORMACJE O BUDYNKU

Czynsz za mkw: 17.00 EUR / m²
Oplata eksploatacyjna: 32.00 PLN / m²
Powierzchnia całkowita: brak danych m²
Współczynnik powierzchni wspólnych: brak danych
Rok budowy: 2000

LOKALIZACJA

PODOBNE OFERTY