Linkedin
21 kwietnia 2026 | ŚREDNI KURS EUR 4.2661 PLN
pl | en

Biuro do wynajęcia Warszawa Śródmieście

Numer: 141166/3105/OLW
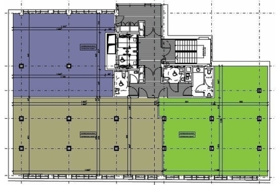
Powierzchnia: 450.00 m²
Czynsz za mkw: 19.50 EUR / m²
Oplata eksploatacyjna: 28.50 PLN / m²
Dostępne powierzchnie: od 184.00 m² - do 450.00 m²
ZAPISZ DO PDF
WYŚLIJ OFERTĘ
NA SWÓJ E-MAIL
więcej
więcej
więcej
N21 to nowoczesny budynek biurowy położony w sercu Warszawy przy ul. Nowogrodzkiej 21, oferujący prestiżową przestrzeń biurową w ścisłym centrum miasta. Został oddany do użytku w 2008 roku i posiada 9 pięter, na których znajduje się blisko 3 650 m² powierzchni użytkowej, z czego 2 951 m² to wysokiej klasy powierzchnie biurowe. Typowe piętro ma około 450 m², co pozwala na elastyczną aranżację przestrzeni zgodnie z potrzebami najemców. Budynek wyróżnia się reprezentacyjną elewacją z kamienia i szkła, co czyni go rozpoznawalnym punktem na mapie Warszawy. Wnętrza zostały wykończone w wysokim standardzie, zapewniając komfortowe warunki pracy, w tym optymalny dostęp do naturalnego światła dziennego. Dodatkowe udogodnienia obejmują podnoszone podłogi, uchylne okna, dostęp do światłowodu oraz całodobową ochronę i reprezentacyjną recepcję. Na parterze znajdują się lokale handlowo-usługowe, a do dyspozycji najemców jest także taras. N21 usytuowany jest w strategicznej lokalizacji, blisko skrzyżowania głównych arterii komunikacyjnych miasta – Alei Jerozolimskich i ul. Marszałkowskiej. W pobliżu znajdują się liczne punkty gastronomiczne, sklepy, instytucje publiczne oraz atrakcje, takie jak Pałac Kultury i Nauki czy Złote Tarasy. Lokalizacja zapewnia doskonały dostęp do transportu publicznego, zaledwie 100 metrów od stacji metra Centrum i krótkim spacerem od Dworca Centralnego. Dojazd samochodem do Lotniska Chopina zajmuje około 20 minut, co dodatkowo zwiększa atrakcyjność tego miejsca jako siedziby dla firm. N21 to doskonały wybór dla firm poszukujących prestiżowej lokalizacji w centrum Warszawy, łączącej nowoczesność z wyjątkowym komfortem prac

INFORMACJE O BUDYNKU

Czynsz za mkw: 19.50 EUR / m²
Oplata eksploatacyjna: 28.50 PLN / m²
Powierzchnia całkowita: brak danych m²
Współczynnik powierzchni wspólnych: brak danych
Rok budowy: 2008

LOKALIZACJA

PODOBNE OFERTY