Linkedin
17 kwietnia 2026 | ŚREDNI KURS EUR 4.2661 PLN
pl | en

Biuro do wynajęcia Warszawa Śródmieście

Numer: 141819/3105/OLW
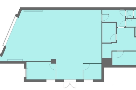
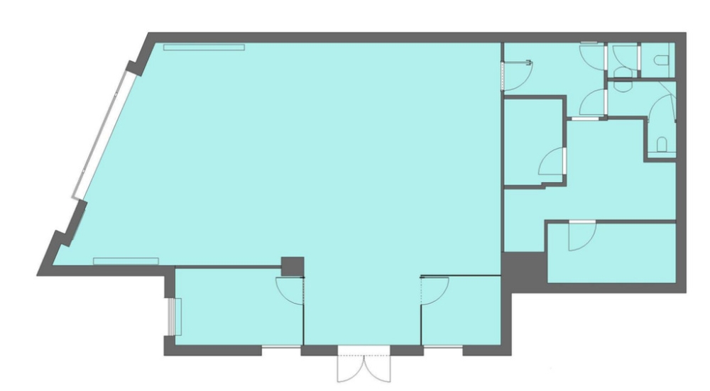
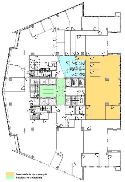
Powierzchnia: 831.20 m²
Czynsz za mkw: 17.70 EUR / m²
Oplata eksploatacyjna: 4.60 EUR / m²
Dostępne powierzchnie: od 449.24 m² - do 831.20 m²
ZAPISZ DO PDF
WYŚLIJ OFERTĘ
NA SWÓJ E-MAIL
więcej
więcej
więcej
Lokal użytkowy usytuowany w nowoczesnym budynku apartamentowo-biurowym, zlokalizowanym w bliskim sąsiedztwie Centrum Handlowego Arkadia. Biurowiec jest jednym z najwyższych budynków w okolicy, co zapewnia doskonałą ekspozycję. Na wysoki standard budynku składa się czteropoziomowy parking podziemny, halle wejściowe wykończone granitem, wewnętrzny dziedziniec oraz obecność zaplecza handlowo-usługowego na parterze. Bliskie sąsiedztwo stacji metra oraz przystanków komunikacji miejskiej zapewnia sprawną komunikację z całym miastem. Powierzchnia znajduje się na parterze oraz antresoli, po dawnym żłobku.

INFORMACJE O BUDYNKU

Czynsz za mkw: 17.70 EUR / m²
Oplata eksploatacyjna: 4.60 EUR / m²
Powierzchnia całkowita: brak danych m²
Współczynnik powierzchni wspólnych: brak danych
Rok budowy: 2001

LOKALIZACJA

PODOBNE OFERTY