Linkedin
21 kwietnia 2026 | ŚREDNI KURS EUR 4.2661 PLN
pl | en

Biuro do wynajęcia Warszawa Ursynów

Numer: 21982/3105/OLW
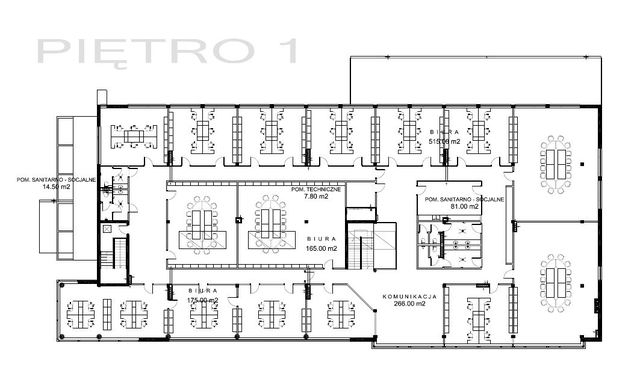
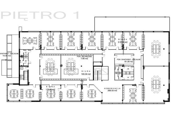
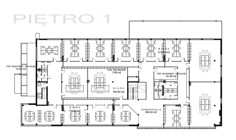
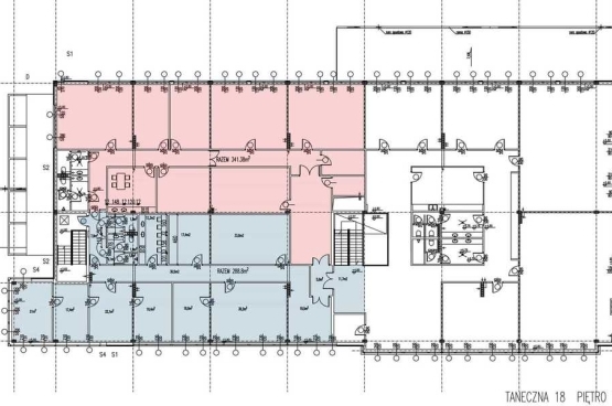
Powierzchnia: 615.00 m²
Czynsz za mkw: 40.00 PLN / m²
Oplata eksploatacyjna: 20.00 PLN / m²
Dostępne powierzchnie: od 615.00 m² - do 615.00 m²
ZAPISZ DO PDF
WYŚLIJ OFERTĘ
NA SWÓJ E-MAIL
więcej
więcej
więcej
Budynek biurowo-magazynowy zlokalizowany na Ursynowie w okolicy Południowej Obwodnicy Warszawy oraz ulicy Puławskiej. Konstrukcja budynku umożliwia bardzo elastyczny podział powierzchni oraz możliwość dowolnej aranżacji, zarówno w układzie open space jak i z podziałem na pokoje. Biura wyposażone są w sieć komputerową i telefoniczną. Atutem jest też duży parking przed budynkiem wraz z bramą TIR. Lokalizacja nieruchomości zapewnia dobry dojazd zarówno samochodem jak i środkami komunikacji miejskiej, bliskość Portu Lotniczego Okęcie. Do ceny należy doliczyć współczynnik powierzchni wspólnych 5% i koszty eksploatacyjne 12 PLN/m2.

INFORMACJE O BUDYNKU

Czynsz za mkw: 40.00 PLN / m²
Oplata eksploatacyjna: 20.00 PLN / m²
Powierzchnia całkowita: brak danych m²
Współczynnik powierzchni wspólnych: brak danych
Rok budowy: 2000

LOKALIZACJA

PODOBNE OFERTY