Linkedin
21 kwietnia 2026 | ŚREDNI KURS EUR 4.2661 PLN
pl | en

Biuro do wynajęcia Warszawa Mokotów

Numer: 23067/3105/OLW
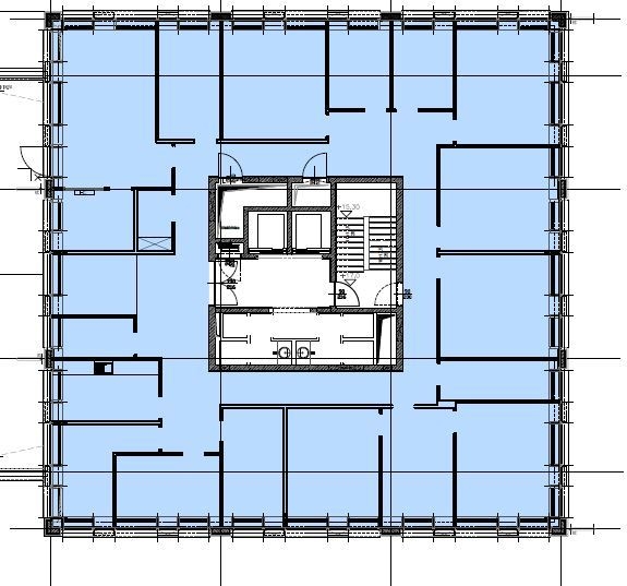
Powierzchnia: 400.00 m²
Czynsz za mkw: 10.50 EUR / m²
Oplata eksploatacyjna: 28.00 PLN / m²
Dostępne powierzchnie: od 294.00 m² - do 1108.00 m²
ZAPISZ DO PDF
WYŚLIJ OFERTĘ
NA SWÓJ E-MAIL
więcej
więcej
więcej
Nowoczesny, 6-piętrowy obiekt biurowy, który oferuje do wynajęcia 6 500 m kw. powierzchni biurowej. Rozwiązania architektoniczne zastosowane w budynku pozwalają na niemalże dowolną aranżację powierzchni i dostosowanie jej do potrzeb najemców. Duże powierzchnie przeszkleń zapewniają doskonały dostęp naturalnego światła dziennego do wnętrza budynku. Budynek gwarantuje do dyspozycji swoim najemcom 173 podziemnych miejsc parkingowych. Jedną z zalet jest lokalizacja w sąsiedztwie drogi ekspresowej S79, która umożliwia dogodny dojazd do portu lotniczego. Doskonała widoczność zapewnia idealną ekspozycję dla logo najemców. Koszty eksploatacyjne wynoszą 24 PLN/ mkw.

INFORMACJE O BUDYNKU

Czynsz za mkw: 10.50 EUR / m²
Oplata eksploatacyjna: 28.00 PLN / m²
Powierzchnia całkowita: brak danych m²
Współczynnik powierzchni wspólnych: brak danych
Rok budowy: 2002

LOKALIZACJA

PODOBNE OFERTY