Linkedin
21 kwietnia 2026 | ŚREDNI KURS EUR 4.2661 PLN
pl | en

Biuro do wynajęcia Wrocław

Numer: 71291/3105/OLW
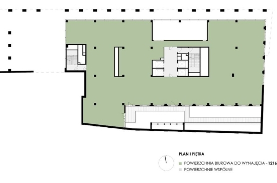
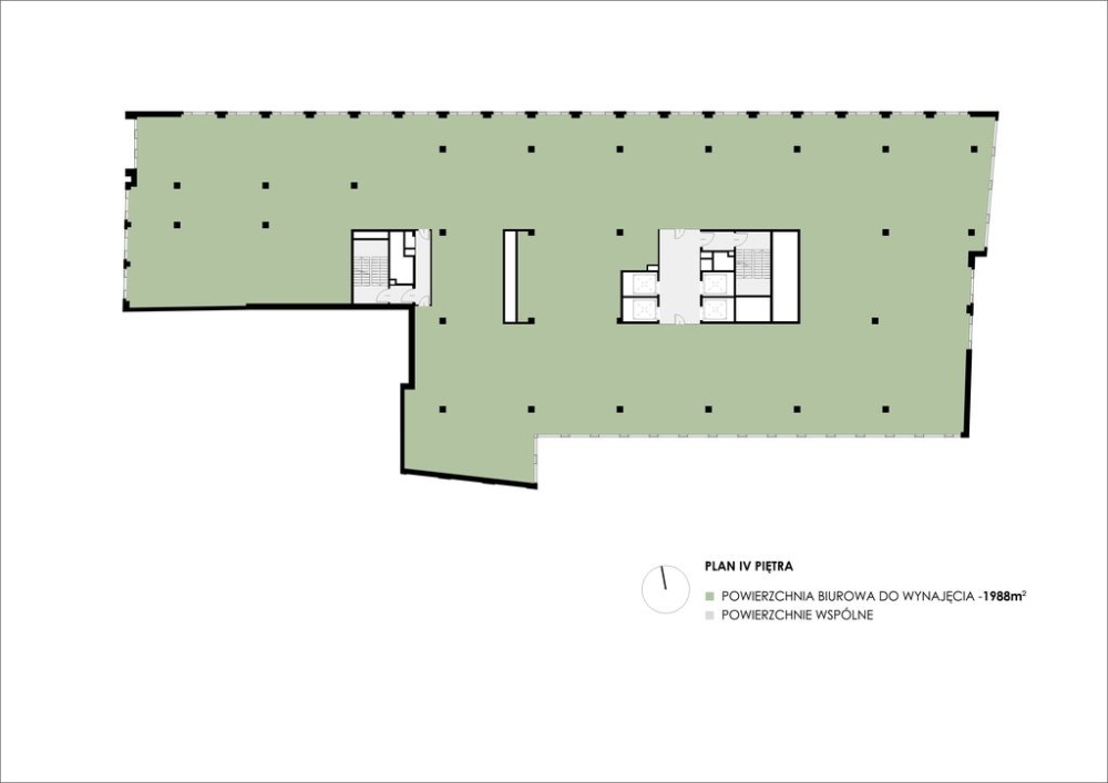
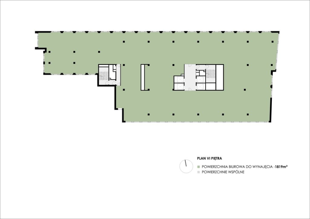
Powierzchnia: 1819.00 m²
Czynsz za mkw: 24.00 EUR / m²
Oplata eksploatacyjna: 18.10 PLN / m²
Dostępne powierzchnie: od 739.00 m² - do 1819.00 m²
ZAPISZ DO PDF
WYŚLIJ OFERTĘ
NA SWÓJ E-MAIL
więcej
więcej
więcej
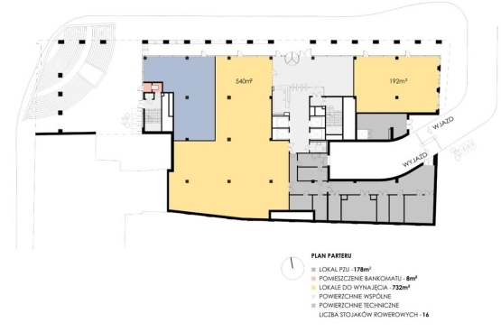
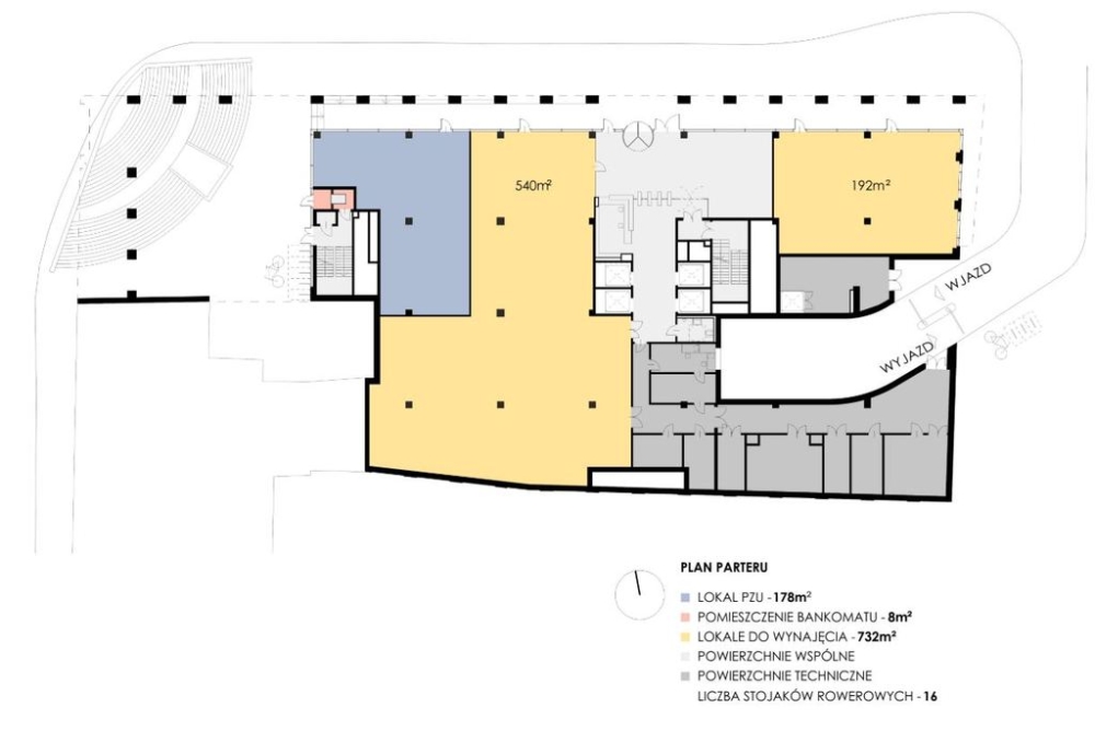
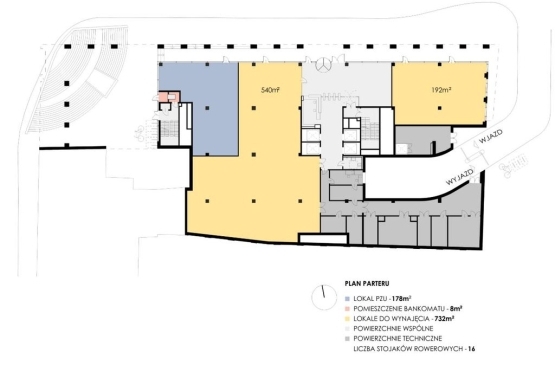
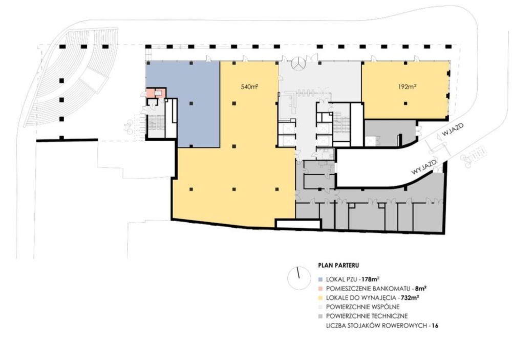
Brama Oławska to nowopowstający biurowiec w miejscu dawnego budynku PZU. Obiekt klasy A o powierzchni całkowitej ok 14 tys. m kw. powstanie w samym centrum Wrocławia, przy jednym z największych węzłów komunikacyjnych - Placu Dominikańskim. Budynek składać się będzie z 7 kondygnacji naziemnych o powierzchni typowego piętra ok. 1800 m kw. oraz 3 kondygnacji podziemnych, na których będzie zlokalizowane 140 miejsc parkingowych. W budynku dodatkowo znajdzie się stacja ładowania samochodów elektrycznych, miejsca postojowe dla rowerów oraz szatnie i prysznice dla rowerzystów. Architektura budynku doskonale wpasuje się w otoczenie dzięki połączenia nowoczesnych elementów z tradycyjnymi.

INFORMACJE O BUDYNKU

Czynsz za mkw: 24.00 EUR / m²
Oplata eksploatacyjna: 18.10 PLN / m²
Powierzchnia całkowita: brak danych m²
Współczynnik powierzchni wspólnych: brak danych
Rok budowy: 2022

LOKALIZACJA

PODOBNE OFERTY