Linkedin
4 lutego 2026 | ŚREDNI KURS EUR 4.2661 PLN
pl | en

Biuro do wynajęcia Wrocław

Numer: 134940/3105/OLW
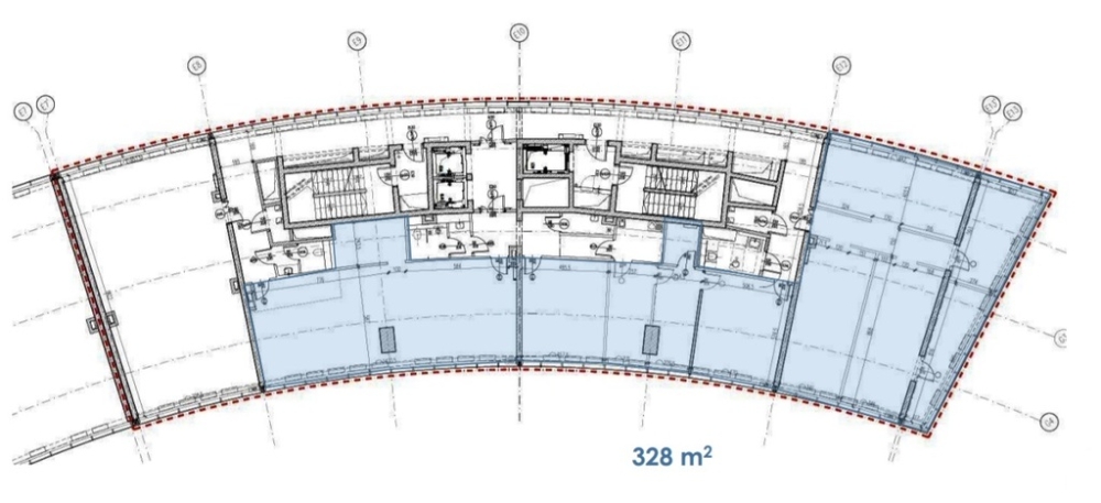
Powierzchnia: 1050.00 m²
Czynsz za mkw: 14.75 EUR / m²
Oplata eksploatacyjna: 29.00 PLN / m²
Dostępne powierzchnie: od 42.00 m² - do 1100.00 m²
ZAPISZ DO PDF
WYŚLIJ OFERTĘ
NA SWÓJ E-MAIL
więcej
więcej
więcej
SKY TOWER to najwyższy kompleks biurowo – handlowo - apartamentowy w Polsce, 212 metrów wysokości i 50 pięter. Biura znajdują się w budynkach B2 i B3. W budynku wieży B2 biura zajmują przestrzeń od 4. do 26. piętra. W budynku towarzyszącym B3 część biurowa zajmuje powierzchnię od 5. do 10. piętra. W inwestycji Sky Tower znaleźć można nie tylko nowoczesne powierzchnie biurowe, ale także luksusowe apartamenty, galerię handlową (25 000 m2) oraz liczne punkty usługowe i rekreacyjne. W budynku znajduje się również wielopoziomowy parking podziemny.

INFORMACJE O BUDYNKU

Czynsz za mkw: 14.75 EUR / m²
Oplata eksploatacyjna: 29.00 PLN / m²
Powierzchnia całkowita: brak danych m²
Współczynnik powierzchni wspólnych: brak danych
Rok budowy: 2013

LOKALIZACJA

PODOBNE OFERTY