Linkedin
17 kwietnia 2026 | ŚREDNI KURS EUR 4.2661 PLN
pl | en

Biuro do wynajęcia Warszawa Śródmieście

Numer: 66077/3105/OLW
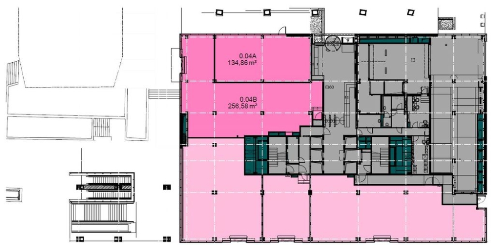
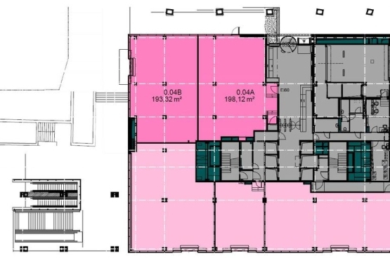
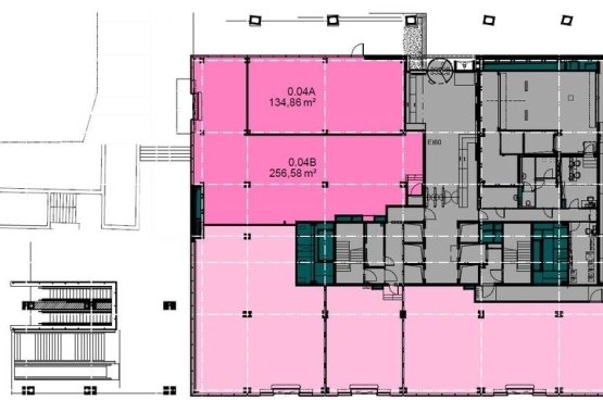
Powierzchnia: 380.00 m²
Czynsz za mkw: 150.00 EUR / m²
Oplata eksploatacyjna: 26.00 PLN / m²
Dostępne powierzchnie: od 263.00 m² - do 380.00 m²
ZAPISZ DO PDF
WYŚLIJ OFERTĘ
NA SWÓJ E-MAIL
więcej
więcej
więcej
Nowoczesny obiekt biurowy zlokalizowany w centrum Warszawy u zbiegu głównych arterii miasta: ulic Marszałkowskiej i Świętokrzyskiej. Pierwszy budynek w Warszawie mieszczący się przy stacji dwóch linii metra. Inwestycja składa się z 10 kondygnacji naziemnych oraz 3 podziemnych. W budynku na parterze i pierwszym piętrze znajduje się część handlową. Obiekt oferuje powierzchnie w najwyższym standardzie, wyposażone między innymi w klimatyzację, podnoszone podłogi, podwieszane sufity, światłowód oraz podwójne źródło zasilania.

INFORMACJE O BUDYNKU

Czynsz za mkw: 150.00 EUR / m²
Oplata eksploatacyjna: 26.00 PLN / m²
Powierzchnia całkowita: brak danych m²
Współczynnik powierzchni wspólnych: brak danych
Rok budowy: 2018

LOKALIZACJA

PODOBNE OFERTY