Linkedin
21 kwietnia 2026 | ŚREDNI KURS EUR 4.2661 PLN
pl | en

Biuro do wynajęcia Łódź Łódź-Widzew

Numer: 71186/3105/OLW
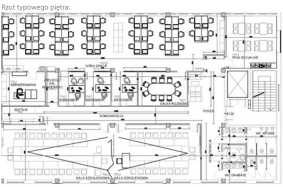
Powierzchnia: 517.00 m²
Czynsz za mkw: 31.00 PLN / m²
Oplata eksploatacyjna: 8.50 PLN / m²
Dostępne powierzchnie: od 517.00 m² - do 517.00 m²
ZAPISZ DO PDF
WYŚLIJ OFERTĘ
NA SWÓJ E-MAIL
więcej
więcej
więcej
Centrum Biznesowe Inter-Mar to zmodernizowany budynek biurowy oferujący ponad 4 000 m2 powierzchni na wynajem. Elastyczny układ każdego piętra pozwala dowolnie aranżować przestrzeć wedle potrzeb przyszłego Najemcy. Typowe piętro to powierzchnia ok. 900 m2. Najemcy Centrum Biznesowego mają do swojej dyspozycji 50 naziemnych miejsc parkingowych. Standard wykończeń wnętrz obejmuje m. in.: klimatyzację, podwieszane sufity, okablowanie oraz czujniki dymu. Komfort pracy zapewniają recepcja oraz ochrona.

INFORMACJE O BUDYNKU

Czynsz za mkw: 31.00 PLN / m²
Oplata eksploatacyjna: 8.50 PLN / m²
Powierzchnia całkowita: brak danych m²
Współczynnik powierzchni wspólnych: brak danych
Rok budowy: 2012

LOKALIZACJA

PODOBNE OFERTY