Linkedin
17 kwietnia 2026 | ŚREDNI KURS EUR 4.2661 PLN
pl | en

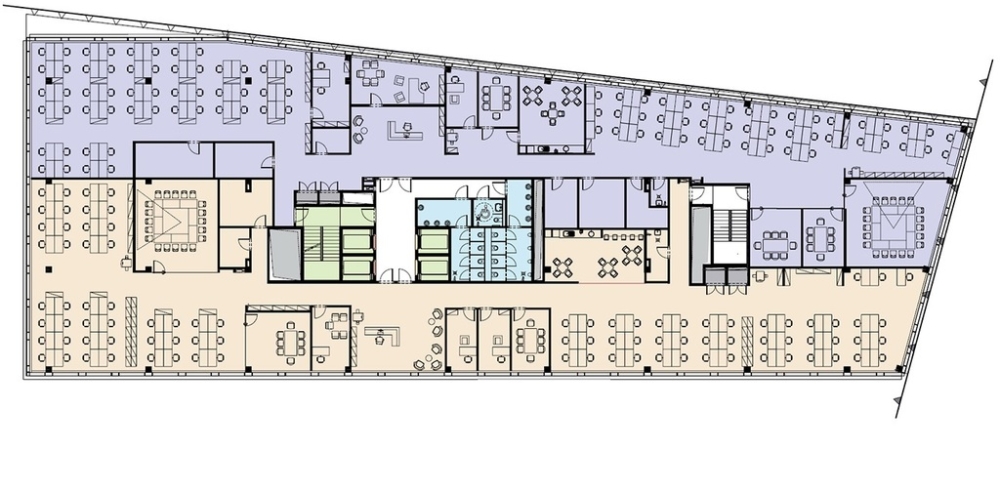
Biuro do wynajęcia Warszawa Mokotów

Numer: 68926/3105/OLW
Powierzchnia: 1128.00 m²
Czynsz za mkw: 15.00 EUR / m²
Oplata eksploatacyjna: 6.70 EUR / m²
Dostępne powierzchnie: od 218.00 m² - do 1324.00 m²
ZAPISZ DO PDF
WYŚLIJ OFERTĘ
NA SWÓJ E-MAIL
więcej
więcej
więcej
Platinium Business Park to nowoczesny kompleks biurowy składający się z kilku budynków o łącznej powierzchni biurowej wynoszącej kilkadziesiąt tysięcy metrów kwadratowych. Architektura budynków charakteryzuje się nowoczesnym designem z dużą ilością przeszkleń, co zapewnia doskonałe doświetlenie wnętrz. Platinium Business Park to miejsce, które łączy nowoczesność z funkcjonalnością, oferując przestrzeń do efektywnej pracy i rozwoju biznesu. Jego strategiczne położenie i wysoki standard wykończenia sprawiają, że jest to idealne miejsce dla firm poszukujących prestiżowej lokalizacji w sercu Warszawy.

INFORMACJE O BUDYNKU

Czynsz za mkw: 15.00 EUR / m²
Oplata eksploatacyjna: 6.70 EUR / m²
Powierzchnia całkowita: brak danych m²
Współczynnik powierzchni wspólnych: brak danych
Rok budowy: 2010

LOKALIZACJA

PODOBNE OFERTY