Linkedin
22 kwietnia 2026 | ŚREDNI KURS EUR 4.2661 PLN
pl | en

Biuro do wynajęcia Wrocław

Numer: 71685/3105/OLW
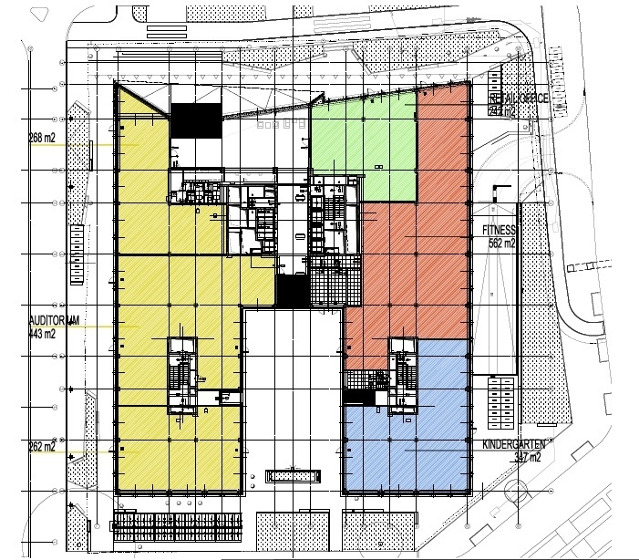
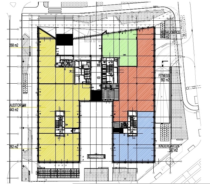
Powierzchnia: 700.00 m²
Czynsz za mkw: 14.00 EUR / m²
Oplata eksploatacyjna: 27.38 PLN / m²
Dostępne powierzchnie: od 244.50 m² - do 700.00 m²
ZAPISZ DO PDF
WYŚLIJ OFERTĘ
NA SWÓJ E-MAIL
więcej
więcej
więcej
Nowy biurowiec będzie się składał z 7 kondygnacji naziemnych i 2 podziemnych, z 231 miejscami parkingowymi dla najemców. budynek swoją nazwą nawiązuje do sąsiedniego biurowca Green Day, zlokalizowanego tuż obok, przy ul. Szczytnickiej 9. Elegancka, prosta forma oferuje swoim najemcom 17 127 m.kw. powierzchni biurowej najwyższej klasy, w samym centrum Wrocławia , zlokalizowany między ogrodem botanicznym, zabytkowym Ostrowem Tumskim i placem Grunwaldzkim. Wspólnie ze swoim sąsiadem nowy budynek uzupełni przestrzeń spacerową łączącą park Tołpy z nabrzeżem Odry.

INFORMACJE O BUDYNKU

Czynsz za mkw: 14.00 EUR / m²
Oplata eksploatacyjna: 27.38 PLN / m²
Powierzchnia całkowita: brak danych m²
Współczynnik powierzchni wspólnych: brak danych
Rok budowy: 2017

LOKALIZACJA

PODOBNE OFERTY